Vuokrataan toimistotilat - Helsinki
Paciuksenkatu 21, Meilahti, 00270 Helsinki #10837202
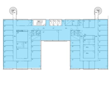
Meilahdessa hyvällä sijainnilla vapaana toimistotilaa seitsemännessä kerroksessa! Business House Paciuksenkatu 21 sijaitsee Meilahdessa, erinomaisten julkisten yhteyksien päässä. Business Park palvelut. Autohallissa 173 autopaikkaa, pihalla 23 autopaikkaa. Rakennuksessa on jäähdytys. Muut palvelut Henkilöstöravintola Saunaosasto ja kokoustila Aulapalvelu Liikenneyhteydet: Munkkiniemen, Otaniemen ja Huopalahdentien bussi- ja raitiovaunulinja
Osoite
Paciuksenkatu 21, 00270 Helsinki
Tilatyyppi
Toimistotilaa
850 m2
Vapautuu
Kysy
Kerros
7
Ota yhteyttä
Pyydä lisätietoa
