Vuokrataan toimistotilat - Espoo
Vaisalantie 2, Otaniemi, 02130 Espoo #10837114
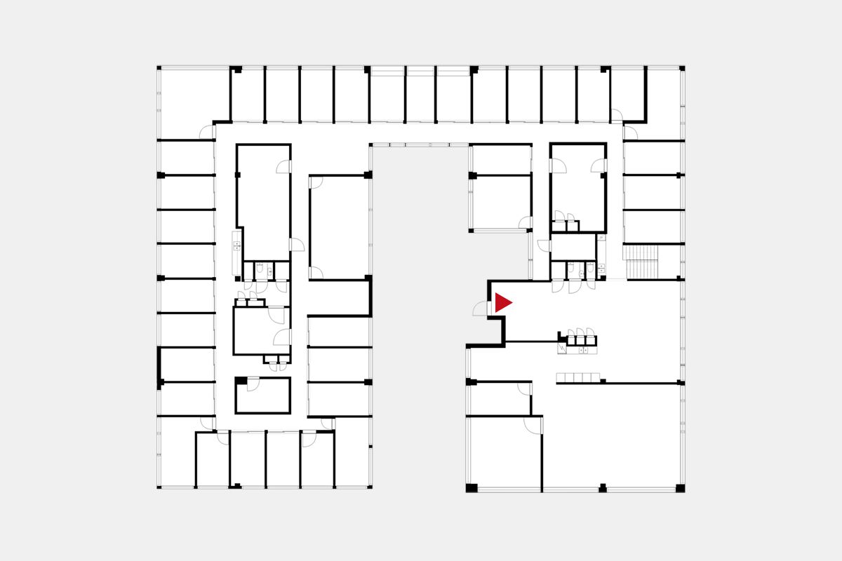
Tilava ja valoisa koko kerroksen kattava toimistotila tarjoaa joustavan työympäristön noin 60-80 työntekijälle. Tilasta löytyvät myös monipuoliset vetäytymis-, ryhmätyö- ja neuvottelutilat. Pohjaratkaisu on muuntojoustava, ja vuokranantaja tekee tarvittaessa mukautuksia tilan tarpeisiin. Vuokrattava tila räätälöidään huomioiden tulevan käyttäjän yksilölliset tarpeet. Lisäksi kohteessa on saatavilla monipuoliset tukipalvelut.
Kohde tarjoaa laajan valikoiman palveluita vuokralaisilleen, mukaan lukien kolme kuntosalia ja viisi saunallista neuvottelutilaa kampusalueella. Sijainti on erinomainen Aalto-yliopiston läheisyydessä, ja se tarjoaa helpon pääsyn Kehä I:lle, Länsimetrolle ja Pikaraitiotielle.
Joustavia ja moderneja toimistotiloja Espoon Otaniemessä, Aalto-yliopiston lähellä sijaitsevassa kampuksessa. Täältä löydät täysin varustellut tilat yrityksellesi, joista on erinomaiset yhteydet niin Helsingin keskustaan kuin muihinkin liikekeskuksiin alueella. Miksi toimitilat Otaniemenstä ? Otaniemen kampus sijaitsee Kehä I:n varrella, mikä tekee siitä helposti saavutettavan sekä autolla että julkisilla liikennevälineillä. Kampukselta löytyy laaja valikoima ravintoloita sekä muita palveluita, kuten kuntosali ja pysäköintitilaa, jotka tekevät työpäivistä sujuvia ja miellyttäviä. Toimistotilat voidaan räätälöidä yrityksesi tarpeiden mukaan, oli kyseessä sitten pieni start-up tai suurempi yritys. Lisäksi käytössäsi on monipuoliset kokous- ja neuvottelutilat. Kampuksella järjestetään säännöllisesti erilaisia tapahtumia, jotka tarjoavat mahdollisuuden verkostoitua muiden yritysten ja alan asiantuntijoiden kanssa. Jos etsit laadukasta toimistotilaa Espoosta, ota yhteyttä ja löydä juuri sinun yrityksellesi sopiva ratkaisu!
