Vuokrataan toimistotilat - Helsinki
Sentnerikuja 1, Lassila, 00440 Helsinki #10837015
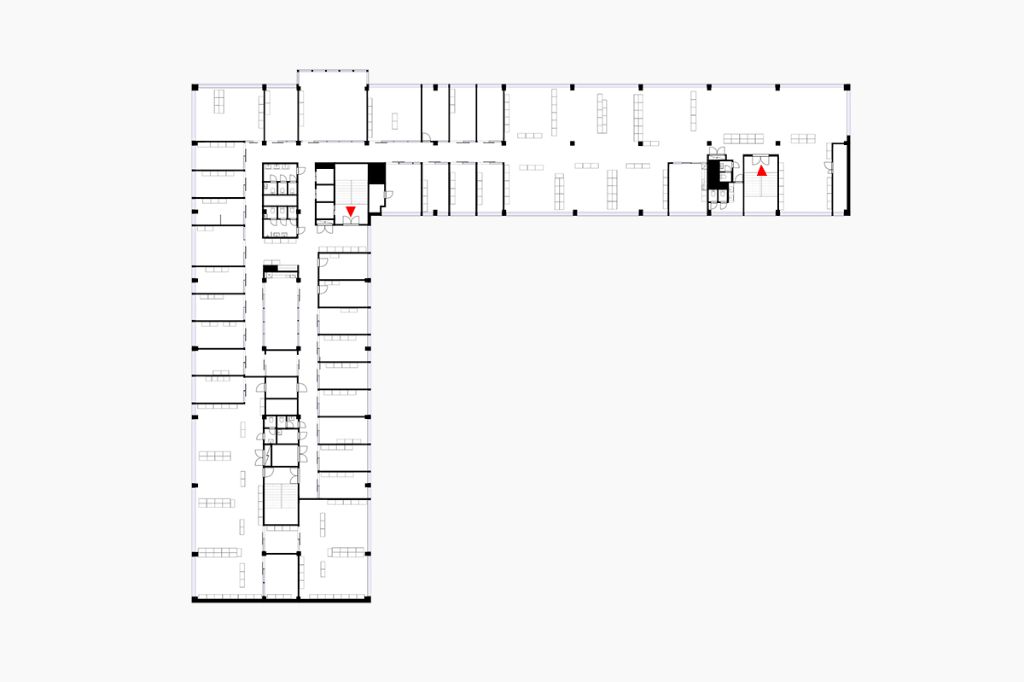
Valoisa toimistohuoneisto hyvällä sijainnilla Helsingin Lassilassa Tilat ovat joustavasti muokattavissa, ja myös yhdistettävissä ylemmän kerroksen kanssa. Liikenteellisesti optimaalinen sijainti Vihdintien varrella lähellä Kehä I:n liittymää. Pohjois-Haagan juna-asemalle lyhyt kävelymatka.
Osoite
Sentnerikuja 1, 00440 Helsinki
Tilatyyppi
Toimistotilaa
800 m2
Vapautuu
Kysy
Kerros
4
Ota yhteyttä
Pyydä lisätietoa
