Vuokrataan toimistotilat - Helsinki
Valimotie 9-11, Pitäjänmäki, 00380 Helsinki #10837014
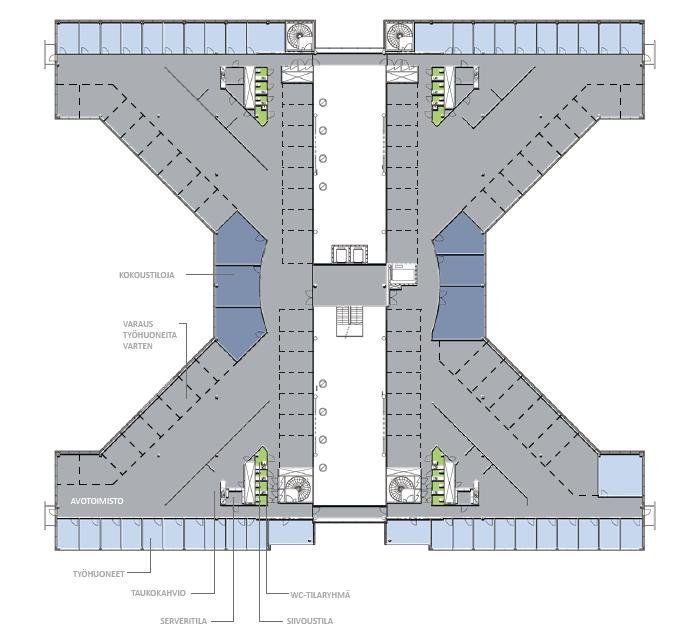
Toisen kerroksen toimisto, tila yhdessä tasossa. Kiinteistö on rakennettu vuonna 1998. Muuntojoustavaa, siistiä, modernia ja valoisaa toimistotilaa kolmannessa kerroksessa, nykyaikaisella tekniikalla, jäähdytys ja monipuolisilla palveluilla. Kiinteistössä on aulapalvelu, lounasravintola, catering, kokouspalvelut sekä edustussauna.
Osoite
Valimotie 9-11, 00380 Helsinki
Tilatyyppi
Toimistotilaa
687 m2
Vapautuu
Kysy
Kerros
2
Ota yhteyttä
Pyydä lisätietoa
