Vuokrataan toimistotilat - Helsinki
Malminkatu 16, Keskusta, 00100 Helsinki #10836997
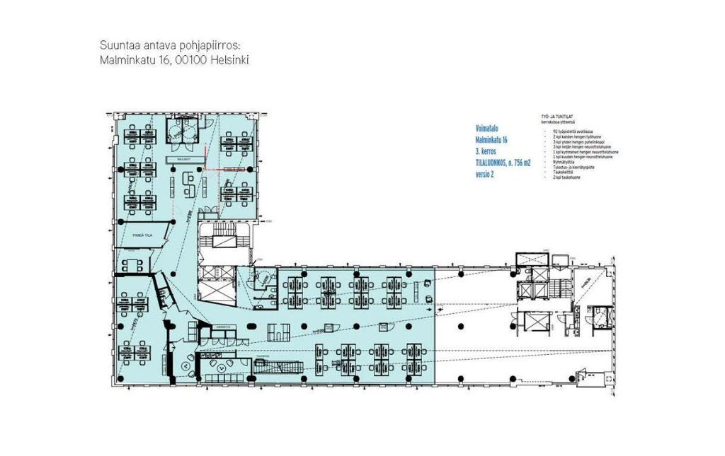
Voimatalossa, Kampissa vapautuu toimistotilaa seitsemännessä kerroksessa. Kiinteistö on valmistunut 1952 ja arkkitehtinä on toiminut Aarne Ervi. Kiinteistö on peruskorjattu. Kaikissa tiloissa on jäähdytys ja CAT6-kaapelointi. Rakennuksessa on oma autohalli, josta on vuokrattavissa jonkin verran autopaikkoja. Lähialueen parkkitalojen tarjonta on myös runsasta. Kiinteistössä on suihkutilat niin miehille kuin naisillekin. Myös polkupyörien työaikainen säilytys on mahdollista.
Osoite
Malminkatu 16, 00100 Helsinki
Tilatyyppi
Toimistotilaa
365 m2
Vapautuu
Kysy
Kerros
3
Ota yhteyttä
Pyydä lisätietoa
