Vuokrataan toimistotilat - Espoo
Hatsinanpuisto 8, Leppävaara, 02600 Espoo #10836979
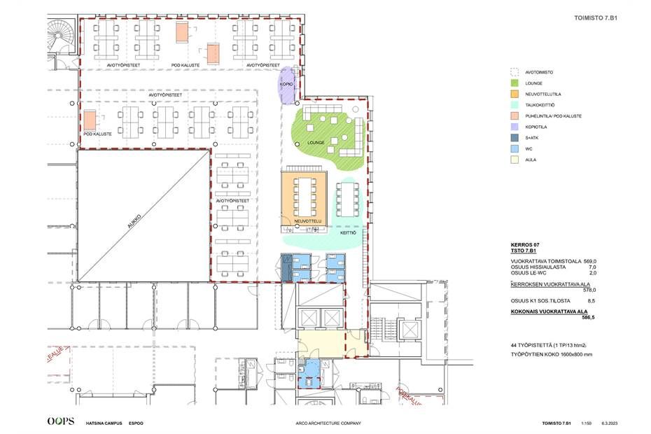
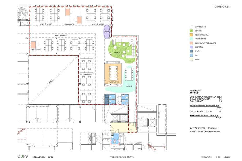
Seitsemännen kerroksen uusi muuttovalmis toimisto uudiskohteessa. Hyvien liikenneyhteyksien äärellä Kehä I:n, pääjunaradan ja Raide-Jokerin risteyksessä. Kohteessa on aulapalvelu, cateringpalvelut sekä lounasravintola. Lisäksi on vuokrattavia neuvottelutiloja. Kiinteistöllä on oma parkkihalli, jossa myös sähköauton latausmahdollisuus. Lisäksi sisäpaikkoja pyörille ja latausvalmius sähköpyörille.
Osoite
Hatsinanpuisto 8, 02600 Espoo
Tilatyyppi
Toimistotilaa
587 m2
Vapautuu
Kysy
Kerros
7
Ota yhteyttä
Pyydä lisätietoa
