Vuokrataan toimistotilat - Espoo
Hatsinanpuisto 8, Leppävaara, 02600 Espoo #10836978
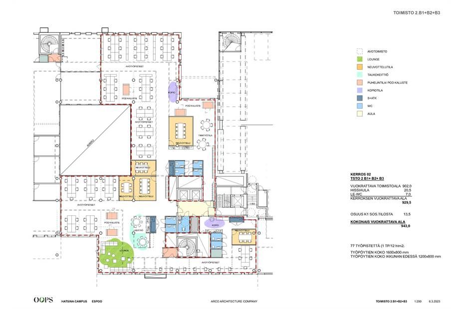
Toisen kerroksen uusi muuttovalmis toimisto uudiskohteessa. Hyvien liikenneyhteyksien äärellä Kehä I:n, pääjunaradan ja Raide-Jokerin risteyksessä. Kohteessa on aulapalvelu, cateringpalvelut sekä lounasravintola. Lisäksi on vuokrattavia neuvottelutiloja. Kiinteistöllä on oma parkkihalli, jossa myös sähköauton latausmahdollisuus. Lisäksi sisäpaikkoja pyörille ja latausvalmius sähköpyörille.
Osoite
Hatsinanpuisto 8, 02600 Espoo
Tilatyyppi
Toimistotilaa
943 m2
Vapautuu
Kysy
Ota yhteyttä
Pyydä lisätietoa
