Vuokrataan toimistotilat - Helsinki
Siltasaarenkatu 8-10, Hakaniemi, 00530 Helsinki #10836928
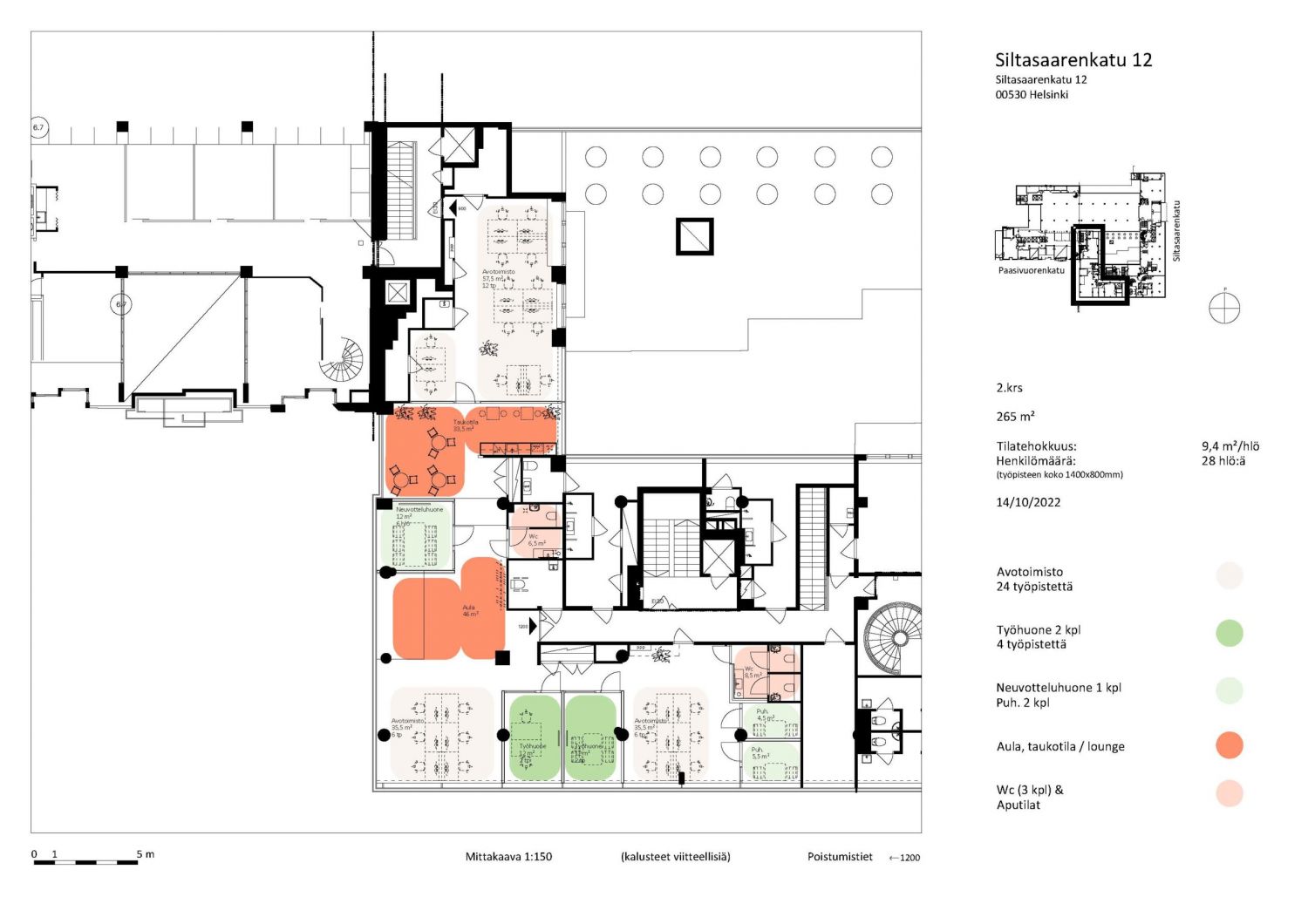
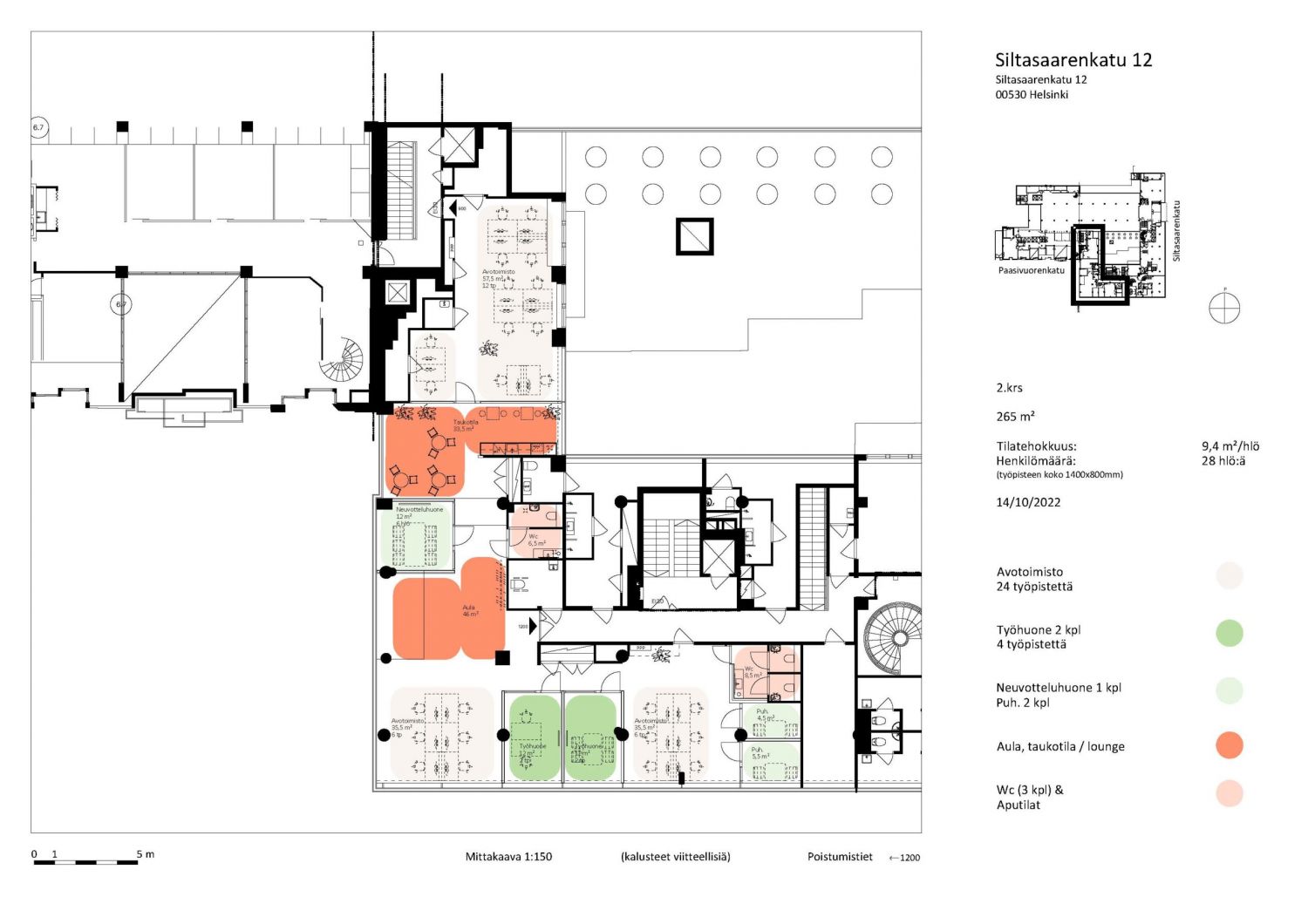
Tila on täysin remontoitu Aina Valmis –konseptin mukaisesti. Tilassa on mm. neuvotteluhuone ja kaksi vetäytymistilaa.
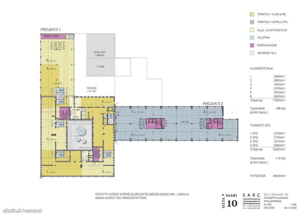
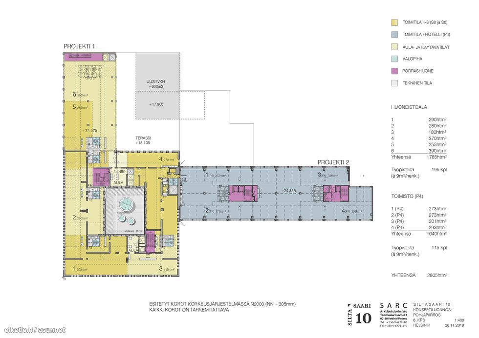
Siltasaari 10 on liikemaailman, kulttuurin ja vapaa-ajan keskittymä. Siltasaari 10 on sekoitus luovia yrityksiä, startupeja, kolmannen sektorin toimijoita, jaettua työtilaa ja huippumodernia, energiatehokasta toimisto-arkkitehtuuria. Tyylikäs sisäänkäynti toimistoihin ja ravintolatiloihin kulttuurihistoriallisesti arvokkaasta Siltasaarenkatu 8-10 kiinteistöstä. Kohde tarjoaa laadukasta toimistotilaa, jossa palvelut saavutettavissa kuivin jaloin kohteen 2.kerroksen toiminnallisen sydämen kautta. Katutasossa PT-kauppa, retail-tilaa sekä kahviloita ja ravintoloita. 2. kerroksessa laadukas ravintola-keskittymä, toimistojen welcome desk, yhteiskäyttöisiä neuvottelu-, tapahtuma- ja projektityötiloja sekä co-working alue. Laadukkaat ja helppokäyttöiset pyörävarastot sekä sosiaalitilat. Autopaikkoja kahdessa kellarikerroksessa. Toimistotilat ovat jaettavissa pienempiin yksiköihin tai yhdistettävissä isommiksi kokonaisuuksiksi joko samaan tasoon tai sisäportaalla kerroksien välillä
