Vuokrataan toimistotilat - Helsinki
Siltasaarenkatu 12, Hakaniemi, 00530 Helsinki #10836926
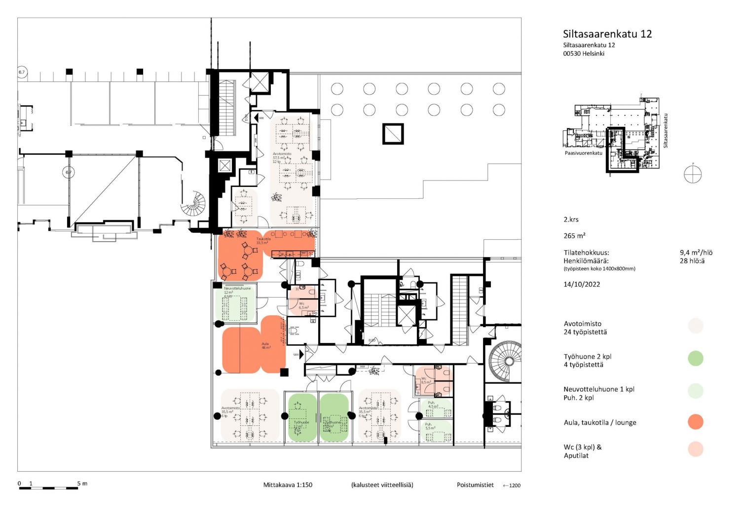
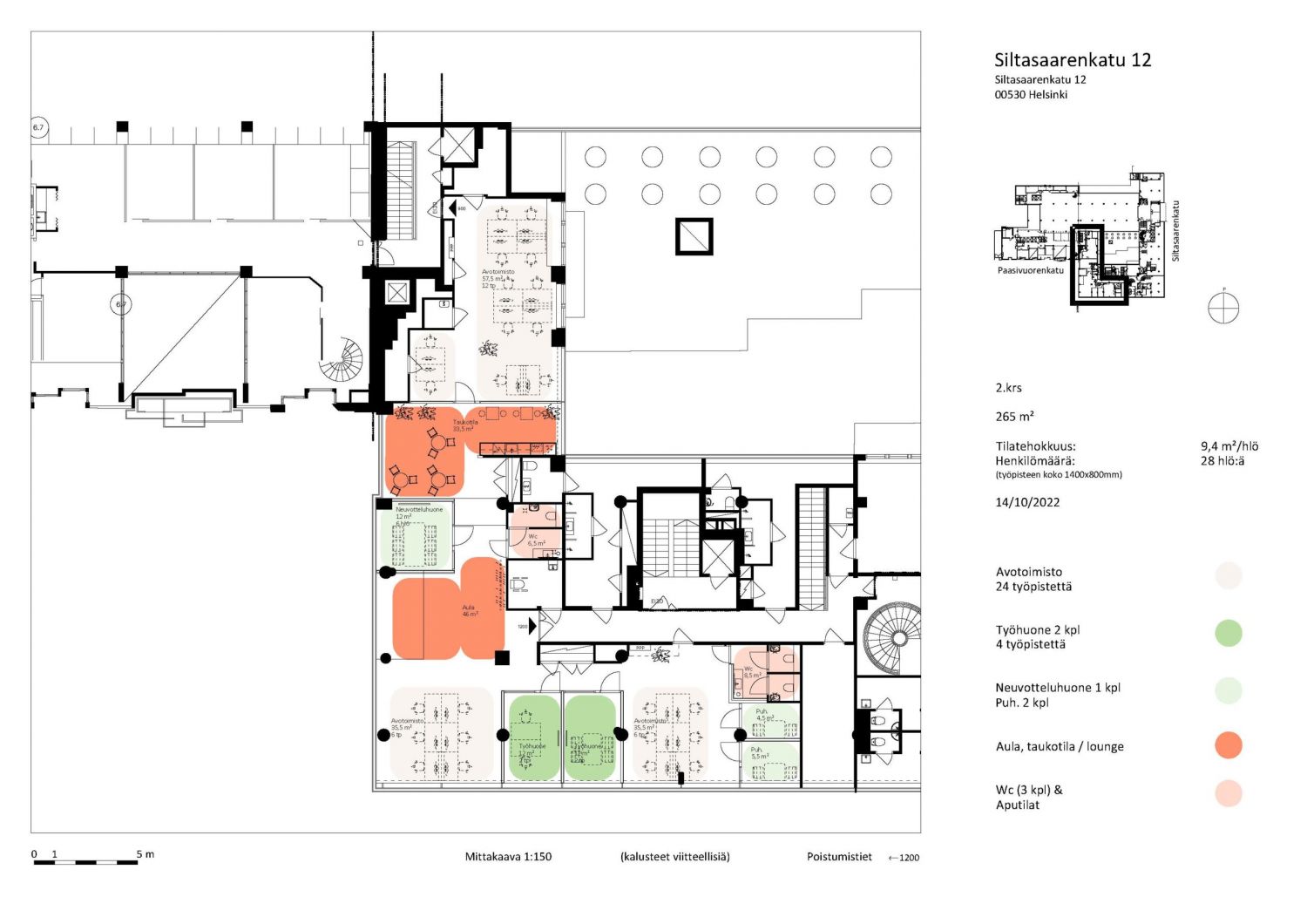
Tämä on hyvin poikkeuksellinen toisen kerroksen liiketilamainen toimistotila, kannattaa käydä tutustumassa. Tilaan toteutettu Aina Valmis tila- konseptin mukainen tila.
Osoite
Siltasaarenkatu 12, 00530 Helsinki
Tilatyyppi
Toimistotilaa
265 m2
Vapautuu
Kysy
Kerros
2
Ota yhteyttä
Pyydä lisätietoa
