Vuokrataan toimistotilat - Helsinki
Töölönkatu 4, Keskusta, 00100 Helsinki #10836916
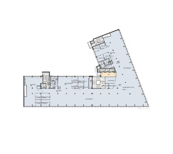
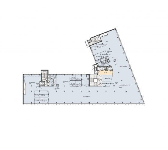
Seitsemännen kerroksen toimisto. Helsingin Kuparitalo on arvokas ja moderni kiinteistö valtakunnan päätöksenteon ytimessä aivan Eduskuntatalon vieressä Töölössä. Historiasta Outokummun pääkonttorina kertoo niin julkisivussa kuin monissa sisätiloissakin käytetty kupari Talo tarjoaa henkilöstöravintolan ja poikkeuksellisen hyvät catering-palvelut. Kuparitalo sijaitsee Etu-Töölössä hyvien kulkuyhteyksien ja palveluiden varrella, kävelymatkan päässä Kampin keskuksesta.
Osoite
Töölönkatu 4, 00100 Helsinki
Tilatyyppi
Toimistotilaa
882 m2
Vapautuu
Kysy
Ota yhteyttä
Pyydä lisätietoa
