Vuokrataan tuotantotilat - Tampere
Etu-Hankkion katu 1, 33700 Tampere #10836861
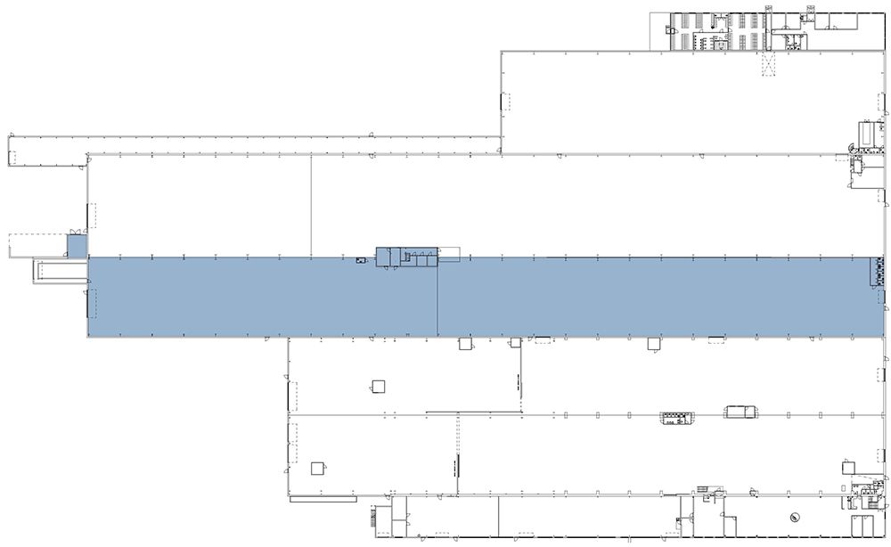
Vuokrataan Tampereen Messukylän teollisuusalueella oleva tuotantotila. Hallin vapaa korkeus 7 m. Tiloissa siltanostureita. Tampereen Messukylän alueella sijaitseva, alun perin Tampella Oy:n omistuksessa ollut teollisuusalue koostuu vanhasta ”Tiilitalo” nimikkeellä kulkevasta toimistorakennuksesta ja useammasta osasta koostuvasta teollisuustilasta. Toimistotalon kokonaispinta-ala on noin 2400m2. Varsinaisen teollisuushallin kokonaisala on noin 20700m2, minkä lisäksi alueella on pienempiä rakennuksia ja katoksia.
Osoite
Etu-Hankkion katu 1, 33700 Tampere
Tilatyyppi
Tuotantotilaa
2658 m2
Vapautuu
Kysy
Kerros
1
Ota yhteyttä
Pyydä lisätietoa
