Vuokrataan toimistotilat - Espoo
Itsehallintokuja 3, Leppävaara, 02600 Espoo #10836787
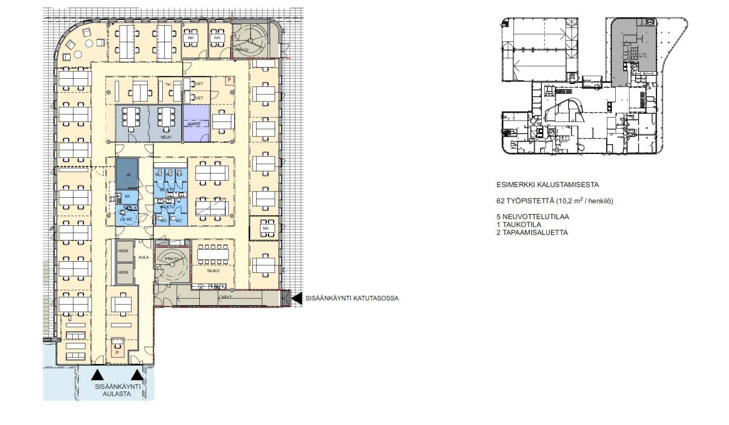
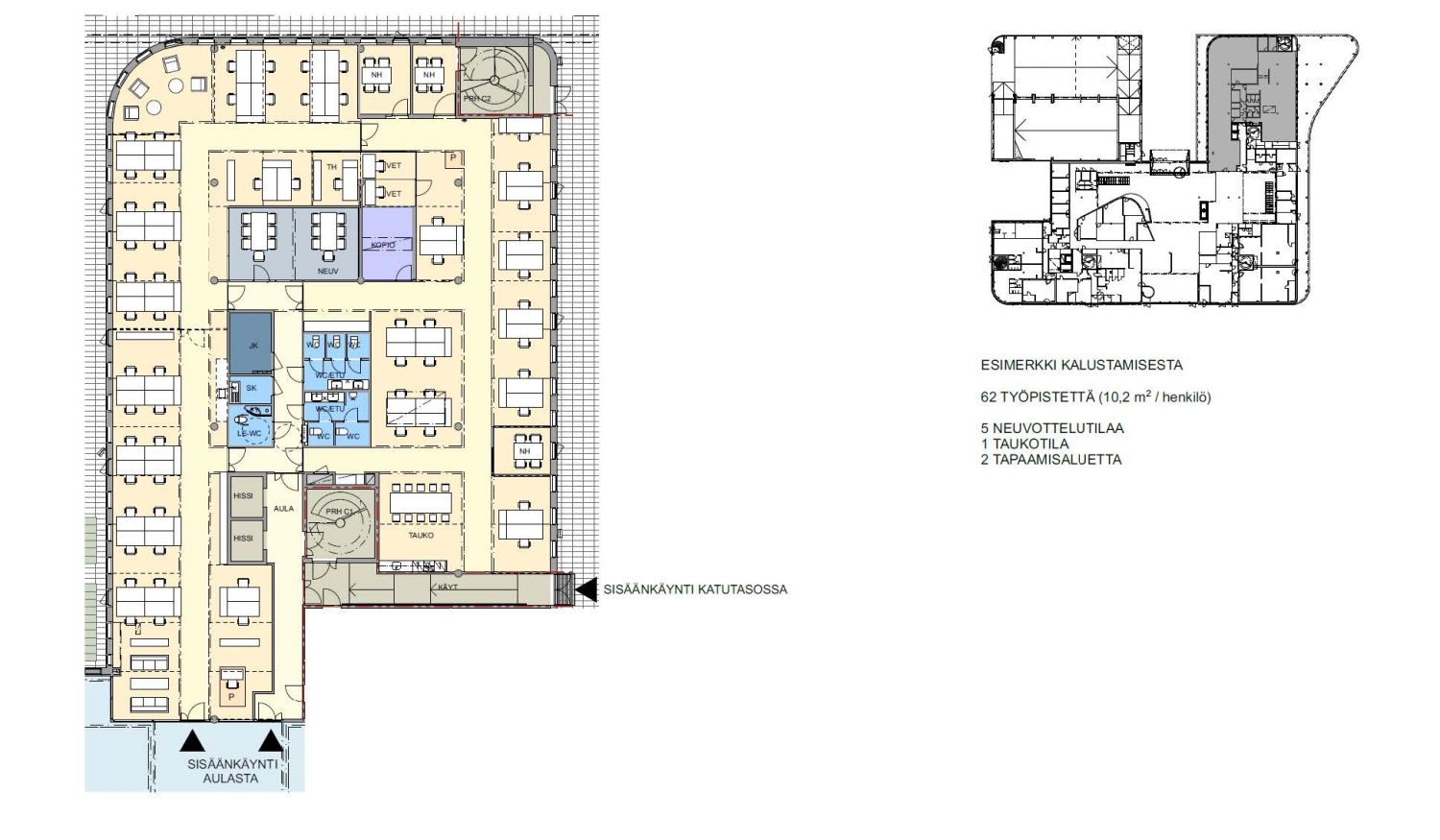
Maantasokerroksen tyylikäs toimistotila. Normaalia korkeampaa tilaa isoilla ikkunoilla. Moderni 2019 valmistunut energiapihi toimistotalo Leppävaarassa. Kohteessa on aulapalvelu, ravintola ja saunatila.
Osoite
Itsehallintokuja 3, 02600 Espoo
Tilatyyppi
Toimistotilaa
703 m2
Vapautuu
Kysy
Ota yhteyttä
Pyydä lisätietoa
