Vuokrataan toimistotilat - Helsinki
Kumpulantie 15, Vallila, 00520 Helsinki #10836747
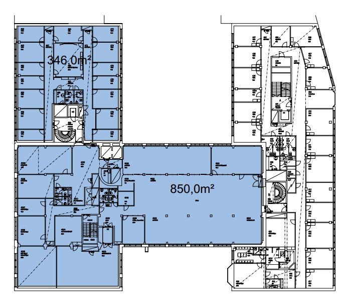
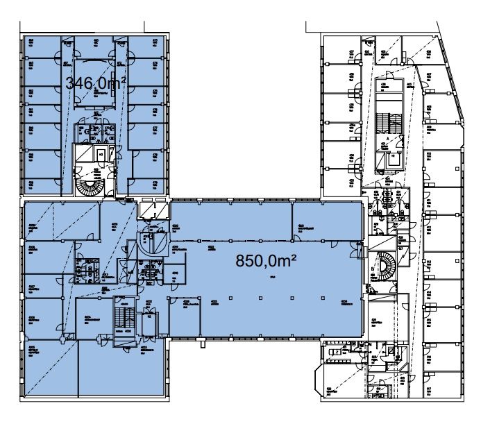
Persoonallista toimistotilaa lähellä Pasilan asemaa. Vuonna 1999 valmistuneessa kiinteistössä on pääosin muunneltavaa avotoimistotilaa . Kiinteistössä on tilakohtainen jäähdytys sekä Cat6-kaapelointi
Osoite
Kumpulantie 15, 00520 Helsinki
Tilatyyppi
Toimistotilaa
676 m2
Vapautuu
Kysy
Kerros
4
Ota yhteyttä
Pyydä lisätietoa
