Vuokrataan toimistotilat - Espoo
Puolikkotie 8, Matinkylä, 02230 Espoo #10836723
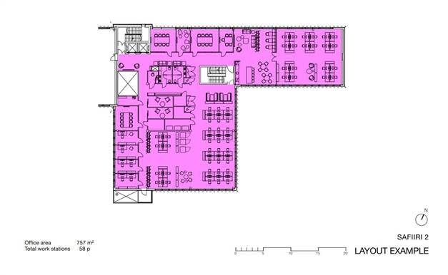
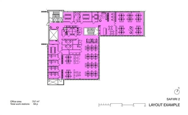
3. kerroksen valoisa toimisto.
Tila muodostuu avo - ja toimistohuoneista.
Tila on myös jaettavissa kompakteihin 337 m² sekä 419 m² osiin.
Vuokralaisille on tarjolla erinomaiset palvelut sekä runsaasti parkkipaikkoja.
Kiinteistö sijaitsee Länsiväylän varrella lähellä kauppakeskus Iso Omenaa.
Osoite
Puolikkotie 8, 02230 Espoo
Tilatyyppi
Toimistotilaa
756 m2
Vapautuu
Kysy
Kerros
3
Ota yhteyttä
Pyydä lisätietoa
