Vuokrataan toimistotilat - Helsinki
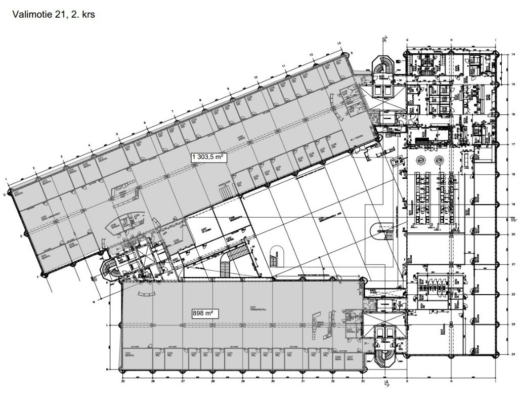
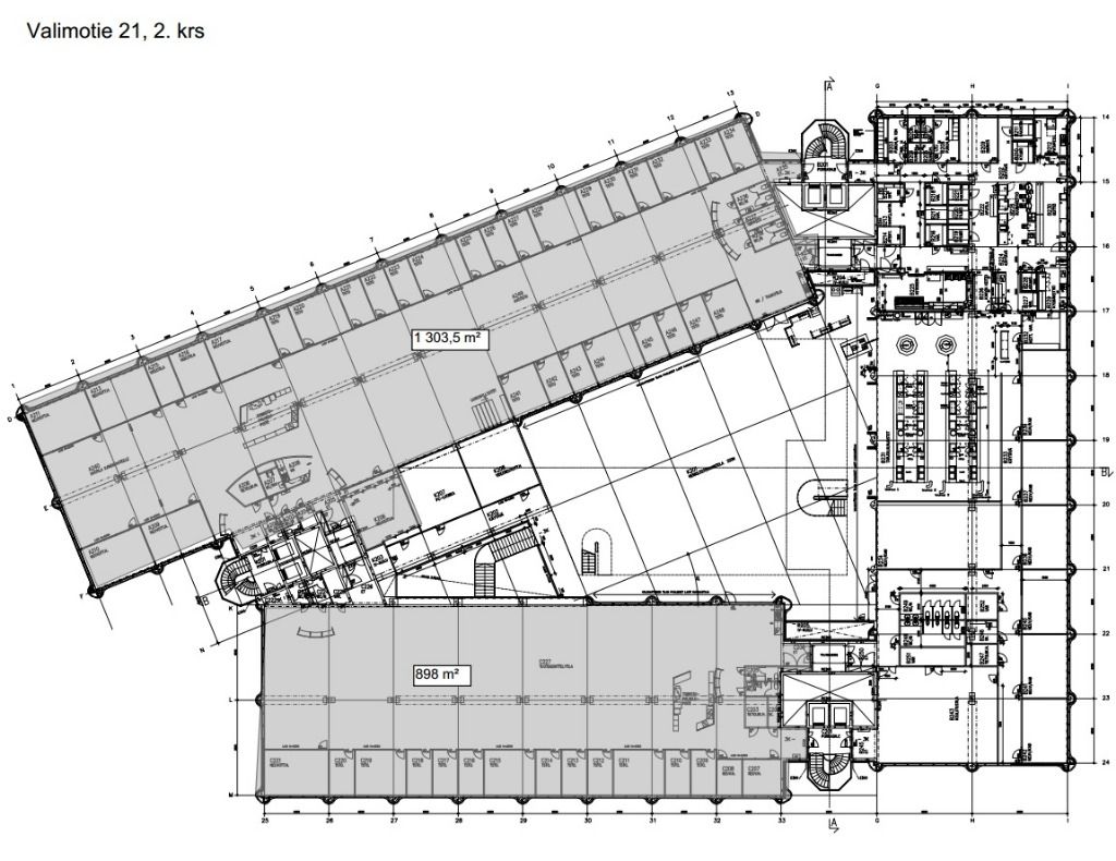
Valimotie 21, Pitäjänmäki, 00380 Helsinki #10836718
Vuokrattavana viihtyisää ja monipuolista toimistotilaa . Valimotiellä on loistavat palvelut, kuten lounasravintola ja alavastaanotto sekä laadukkaat kokoustilat, kuten oma 140 hengen auditorio. Autopaikkoja kohteessa on 306 kappaletta. Hyvät lastauslaiturit ja maantasossa varastotilaa tarjolla.
Osoite
Valimotie 21, 00380 Helsinki
Tilatyyppi
Toimistotilaa
1083 m2
Vapautuu
Kysy
Ota yhteyttä
Pyydä lisätietoa
