Vuokrataan toimistotilat - Helsinki
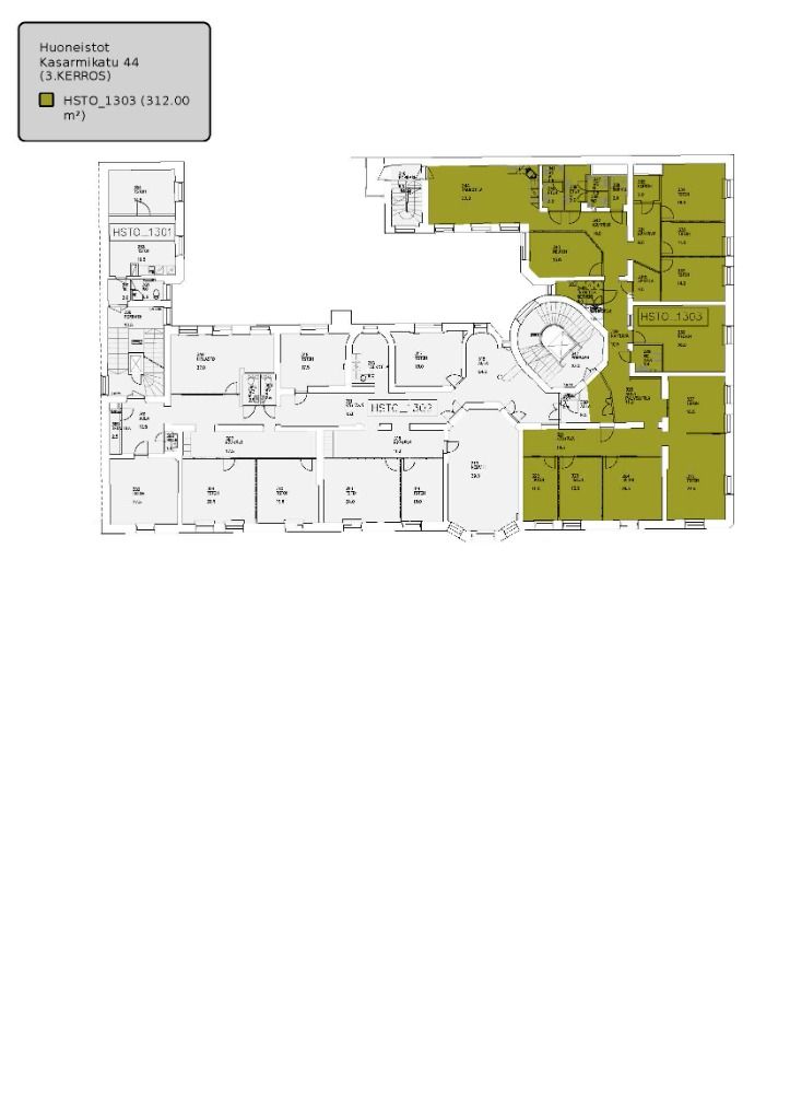
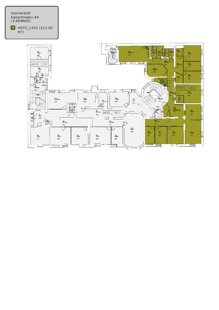
Kasarmikatu 44, 00130 Helsinki #10836686
Keskeisellä paikalla Helsingin keskustassa vuokrattavissa 3 kerroksen toimistotila. Keskustan palvelut lähellä kohdetta. Hyvät julkiset liikenneyhteydet.
Osoite
Kasarmikatu 44, 00130 Helsinki
Tilatyyppi
Toimistotilaa
345 m2
Vapautuu
Kysy
Kerros
3
Ota yhteyttä
Pyydä lisätietoa
