Vuokrataan toimistotilat - Helsinki
Televisiokatu 4, Pasila, 00240 Helsinki #10836675
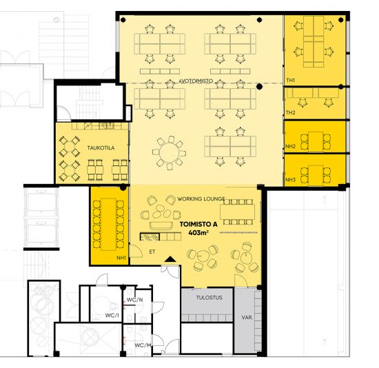
Pasilan Visiossa vapaata toimitilaa ensimmäisessä kerroksessa. Kohteen suunnittelussa on huomioitu yritysten ja käyttäjien pääkonttorille asettamat edustavuuden vaatimukset kuitenkin siten, että mittakaava on pidetty inhimillisenä ja yleistunnelma lämpimänä. Rakennus on varustettu modernilla talotekniikalla ja sen suunnittelussa on huomioitu käyttäjien viihtyvyyden lisäksi energiatehokkuus ja muuntojoustavuus. Rakennuksessa on kaksi maanalaista kerrosta, joihin sijoittuvat pysäköintitilojen lisäksi ravintola kabinetteineen ja henkilökunnan sosiaalitilat. Ravintola samoin kuin rakennuksen muutkin sisätilat saa luonnonvaloa rakennuksen halkaisevasta lasikattoisesta valokuilusta. Valoisa aulatila tuo rakennukseen avaruutta ja luo toimivat puitteet esimerkiksi käyttäjien suuremmille asiakastilaisuuksille. Katutasossa on vastaanottoaulan ja toimistotilojen lisäksi neuvotteluhuoneita vieraiden tapaamista varten sekä suurempi monitoimitila esimerkiksi yritysten koulutus-, esittely- tai tiedotustilaisuuksissa käytettäväksi. Sisääntulokerroksen yläpuolella on neljä toimistokerrosta siten, että vuokrattavan toimistotilan pinta-ala rakennuksessa on yhteensä noin 11.000 m2. Ylimmässä kerroksessa on kaksi edustustason kokoushuonetta sekä henkilökunnan kuntosali. Pasilan Visio Business Center sijaitsee näkyvällä paikalla keskellä Helsinkiä, rantaradan varressa Hartwall Areenan ja Ylen Ison Pajan naapurissa. Pasilan Visioon on erinomaiset yhteydet kaikkialta pääkaupunkiseudulta; Pasilan sekä Ilmalan asemalta on kohteeseen lyhyt kävelymatka ja Hakamäentien laajan perusparannuksen valmistuminen tarjoaa kohteeseen sujuvat yhteydet oman auton käyttäjille. Polkupyörällä töihin kulkevat arvostavat läheisiä keskuspuiston ja radanvarsien kevyen liikenteen väyliä. Pasilan alue on ydinkeskustan ohella Helsingin tärkein työpaikka-alue ja alueen merkitys on entisestään kasvamassa Ilmalan alueen kehittämisen myötä. Lähistön kehittyminen näkyy positiivisesti myös Pasilan Visiossa, sillä kaupunk
