Vuokrataan toimistotilat - Helsinki
Valimotie 13 B, Pitäjänmäki, 00380 Helsinki #10836671
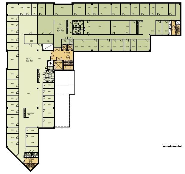
Toimistotila rakennuksen neljännessä kerroksessa. Tila kattaa koko kerroksen ja koostuu sekä yksittäisistä toimistohuoneistä että avoimesta yhteisistä tiloista. Kerros on muokattavissa vastaamaan yrityksen tarpeita. Mahdollisuus on myös vuokrata osa tilasta jakamalla kerros esimerkiksi A- ja B-siipeen. Suunnittelemme muutostyöt aina asiakkaan tarpeiden mukaan.
Rappukäytävässä henkilöhissin lisäksi myös tilava tavarahissi.
Vuokralaisia palvelee Valimotie 13a:ssa sijaitseva aulapalvelu, josta hoituu myös postien vastaanotto, edelleenlähetys sekä pakettipalvelut. Samasta rakennuksesta löydät talon oman kuntosalin, jonne pääsee kulkuavaimella klo 5-21. Katutasossa runsaan lounaan arkipäivisin tarjoilee Ravintola Factory. Mikäli tarvetta on kokoustiloille, löytyy niitä joustavasti aina 2-20:lle henkilölle. Neuvottelutilat ovat vuokrattavissa täältä tai aulapalvelusta.
