Vuokrataan toimistotilat - Tampere
Kelloportinkatu 1, Tampella, 33100 Tampere #10836634
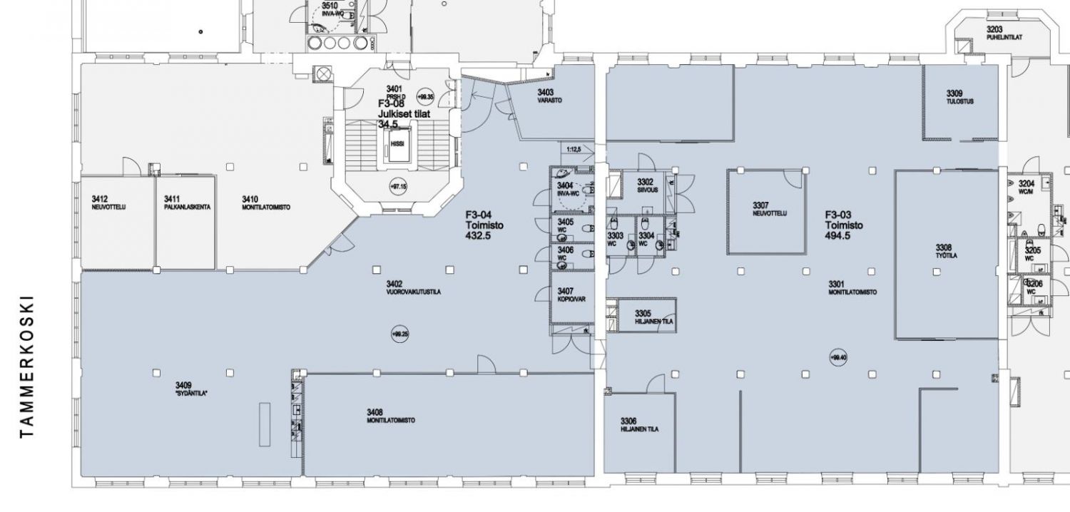
Vuokrataan siisti 3. kerroksen 927 m² toimistotila Tampellasta. Kohde sijaitsee ydinkeskustan tuntumassa, Tammerkosken rannalla. Kaikki tilat on täysin uusittu vuonna 2017.
Kiinteistöllä on oma pysäköintihalli ja pihaparkkipaikkoja. Paljon pysäköintitilaa tarvitseville yrityksille on vuokrattavissa paikkoja myös lähialueen pysäköintilaitoksista.
Kohteeseen on hyvät julkiset yhteydet; Raitiovaunupysäkille n. 700 m ja lähin bussipysäkki sijaitsee n. 180 m päässä. Kiinteistöllä on sertifikaatti LEED CSv3 Gold.
Kysy lisätietoja tai sovitaan käynti kohteelle jo tänään!
Hausala Oy
Erkkilänkatu 11, 33100 Tampere
Näytä puhelinnumero
050 472 7077
Mikko Ranta
Näytä puhelinnumero
050 360 6500
Mika Savikko
Näytä puhelinnumero
050 472 7077
