Vuokrataan toimistotilat - Helsinki
Valimotie 9-11, Pitäjänmäki, 00380 Helsinki #10836623
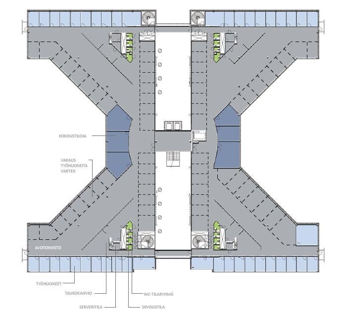
Neljännen kerroksen toimisto, tila yhdessä tasossa. Kiinteistö on rakennettu vuonna 1998. Muuntojoustavaa, siistiä, modernia ja valoisaa toimistotilaa kolmannessa kerroksessa, nykyaikaisella tekniikalla, jäähdytys ja monipuolisilla palveluilla. Kiinteistössä on aulapalvelu, lounasravintola, catering, kokouspalvelut sekä edustussauna.
Osoite
Valimotie 9-11, 00380 Helsinki
Tilatyyppi
Toimistotilaa
1134 m2
Vapautuu
Kysy
Kerros
5
Ota yhteyttä
Pyydä lisätietoa
