Vuokrataan toimistotilat - Helsinki
Sentnerikuja 1, Lassila, 00440 Helsinki #10836571
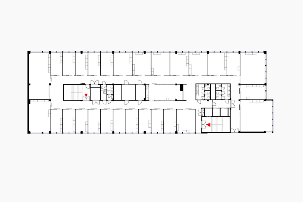
Viidennen kerroksen valoisa toimistohuoneisto hyvällä sijainnilla Helsingin Lassilassa
Tilat ovat joustavasti muokattavissa, ja myös yhdistettävissä ylemmän kerroksen kanssa.
Liikenteellisesti optimaalinen sijainti Vihdintien varrella lähellä Kehä I:n liittymää.
Pohjois-Haagan juna-asemalle lyhyt kävelymatka.
Osoite
Sentnerikuja 1, 00440 Helsinki
Tilatyyppi
Toimistotilaa
910 m2
Vapautuu
Kysy
Ota yhteyttä
Pyydä lisätietoa
