Vuokrataan toimistotilat - Helsinki
Vilhonvuorenkatu 12, Sörnäinen, 00580 Helsinki #10836561
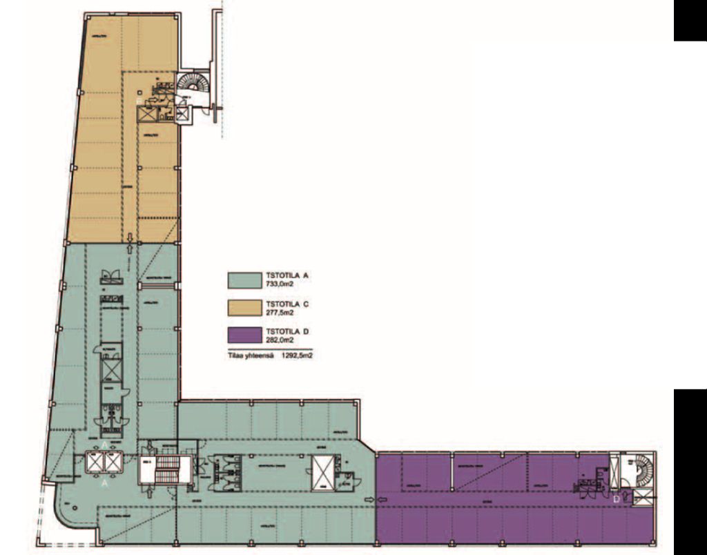
Kuudennen kerroksen valoisa toimistotila. Kummeli Business Parkissa vapaata toimistotilaa. Erinomainen sijainti Sörnäisissä, metroasemalle 100 metriä. Parkkipaikkoja on hallissa ja maksullisia asiakaspaikkoja aivan kiinteistön edessä. Modernissa kiinteistössä on tyylikäs aulavastaanotto, lasikatteinen lounasravintola, sekä varustellut kokoustilat ja auditorio.
Osoite
Vilhonvuorenkatu 12, 00580 Helsinki
Tilatyyppi
Toimistotilaa
920 m2
Vapautuu
Kysy
Kerros
6
Liitetiedostot
Ota yhteyttä
Pyydä lisätietoa
