Vuokrataan toimistotilat - Helsinki
Kumpulantie 15, Vallila, 00520 Helsinki #10836558
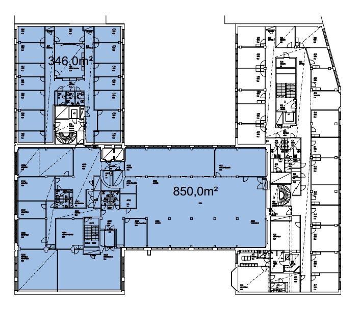
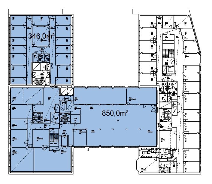
Persoonallista toimistotilaa lähellä pasilan asemaa. Vuonna 1999 valmistuneessa kiinteistössä on pääosin avotoimistotilaa ja yhteensä noin 340–385 työpistettä, 20–90 paikkaa kerrosta kohden. Kiinteistössä on tilakohtainen jäähdytys sekä Cat6-kaapelointi.
Osoite
Kumpulantie 15, 00520 Helsinki
Tilatyyppi
Toimistotilaa
519 m2
Vapautuu
Kysy
Ota yhteyttä
Pyydä lisätietoa
