Vuokrataan toimistotilat - Helsinki
Kumpulantie 15, Vallila, 00520 Helsinki #10836539
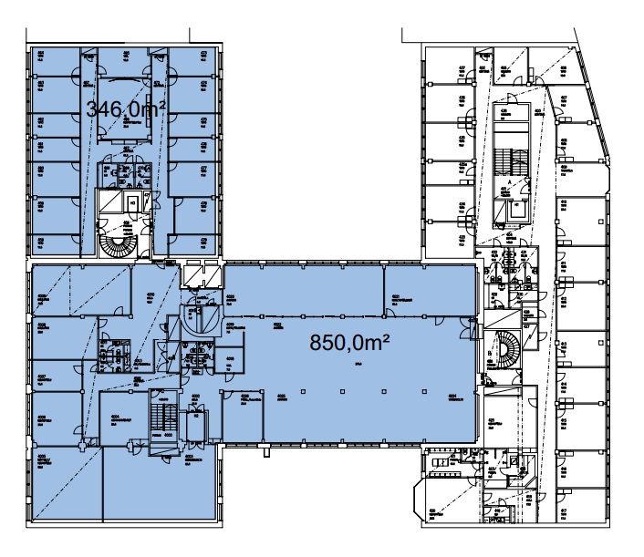
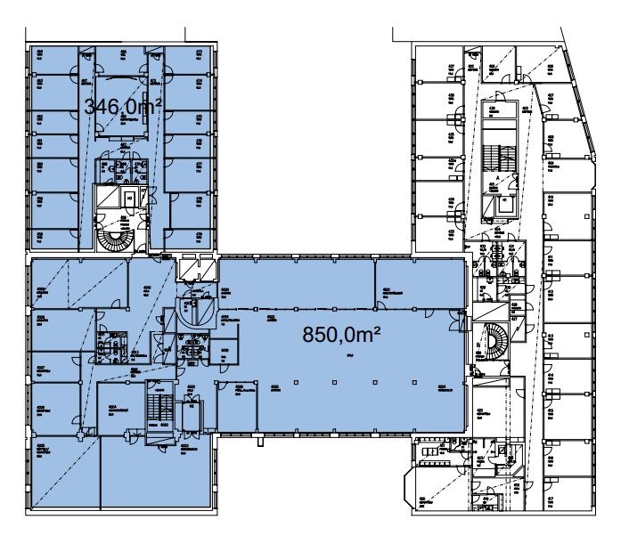
Persoonallista toimistotilaa lähellä pasilan asemaa. Vuonna 1999 valmistuneessa kiinteistössä on pääosin avotoimistotilaa ja yhteensä noin 340–385 työpistettä, 20–90 paikkaa kerrosta kohden. Kiinteistössä on tilakohtainen jäähdytys sekä Cat6-kaapelointi
Osoite
Kumpulantie 15, 00520 Helsinki
Tilatyyppi
Toimistotilaa
850 m2
Vapautuu
Kysy
Ota yhteyttä
Pyydä lisätietoa
