Vuokrataan toimistotilat - Helsinki
Tammasaarenlaituri 3, Ruoholahti, 00180 Helsinki #10836522
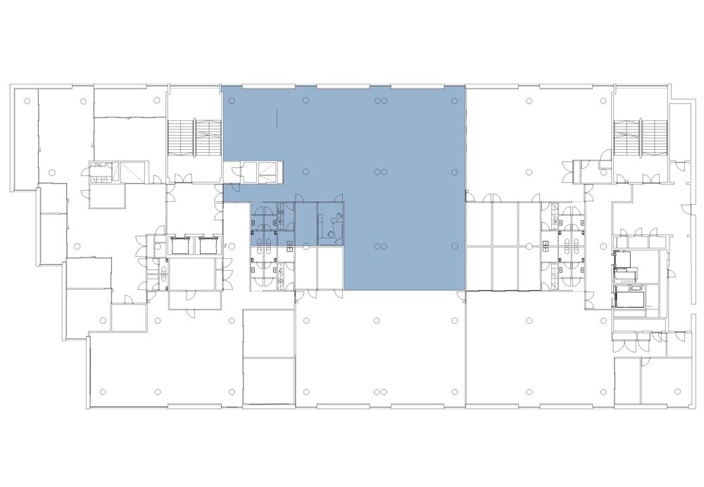
Itämerentalo sijaitsee merellisessä ympäristössä huippupaikalla Ruoholahdessa, aivan Lauttasaarensillan vieressä. Bussit, raitiovaunut ja metro palvelevat työmatkalaisia ja kiinteistöllä on oma lämmin autohalli palvelemassa työmatka-autoilijoiden tarpeita. Itämerentalo on saneerattu vuonna 2002 ja se vastaa olosuhteiltaan hyvin tämän päivän toimistotyön tarpeita. Talon käyttäjiä palvelee mm. aulavastaanotto, kokouskeskus ja lounasravintola. Tila on yhdistettävissä 425m2+214m2=639m2 huoneistoksi.
Osoite
Tammasaarenlaituri 3, 00180 Helsinki
Tilatyyppi
Toimistotilaa
425 m2
Vapautuu
Kysy
Kerros
4
Ota yhteyttä
Pyydä lisätietoa
