Vuokrataan toimistotilat - Helsinki
Sörnäisten Rantatie 29, Kalasatama, 00580 Helsinki #10836483
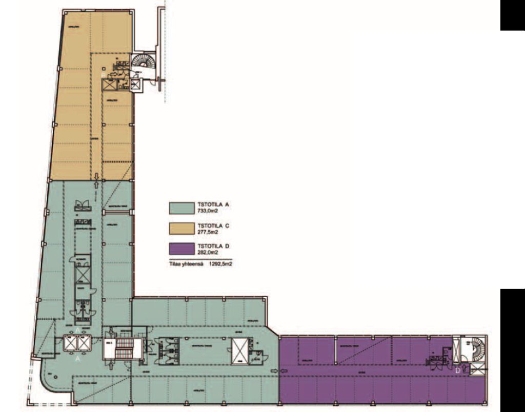
Kummeli Business Parkissa viidennen kerroksen avotoimisto. Erinomainen sijainti Sörnäisissä, metroasemalle 100 metriä. Business Parkin kerrosala on n. 1290 m2. Parkkipaikkoja on hallissa ja maksullisia asiakaspaikkoja aivan kiinteistön edessä. Modernissa kiinteistössä on tyylikäs aulavastaanotto, lasikatteinen lounasravintola, sekä varustellut kokoustilat ja auditorio
Osoite
Sörnäisten Rantatie 29, 00580 Helsinki
Tilatyyppi
Toimistotilaa
594 m2
Vapautuu
Kysy
Kerros
5
Liitetiedostot
Ota yhteyttä
Pyydä lisätietoa
