Vuokrataan toimistotilat - Helsinki
Kaupintie 5, Lassila, Helsinki #10836479
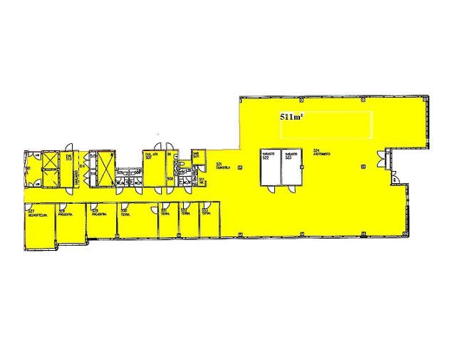
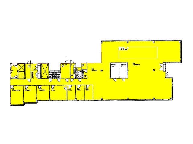
Avotilaa ja työhuoneita sisältävä siisti toimistotila Pohjois-Haagan rautatieaseman läheisyydessä. Mahtava kohde hyvien liikenneyhteyksien varrelta edullisia tilaratkaisuja etsivälle
Osoite
Kaupintie 5, Helsinki
Tilatyyppi
Toimistotilaa
511 m2
Vapautuu
Kysy
Ota yhteyttä
Pyydä lisätietoa
