Vuokrataan toimistotilat - Helsinki
Vilhonvuorenkatu 12, Sörnäinen, 00580 Helsinki #10836469
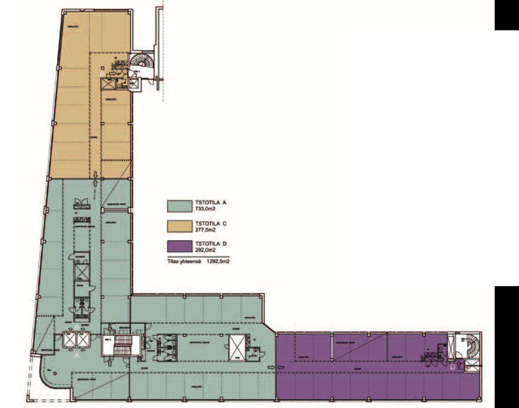
Täysin saneerattu, valoisa avotoimisto 4. kerroksessa, keskeisellä paikalla Kalasatamassa. Tila räätälöidään vuokralaisen tarpeiden mukaan.
Erinomainen sijainti Sörnäisissä, metroasemalle 100 metriä. Parkkipaikkoja on hallissa ja maksullisia asiakaspaikkoja aivan kiinteistön edessä. Modernissa kiinteistössä on tyylikäs aulavastaanotto, lasikatteinen lounasravintola, sekä varustellut kokoustilat ja auditorio
Osoite
Vilhonvuorenkatu 12, 00580 Helsinki
Tilatyyppi
Toimistotilaa
324 m2
Vapautuu
Kysy
Kerros
4
Liitetiedostot
Ota yhteyttä
Pyydä lisätietoa
