Vuokrataan toimistotilat - Helsinki
Valimotie 21, Pitäjänmäki, 00380 Helsinki #10836459
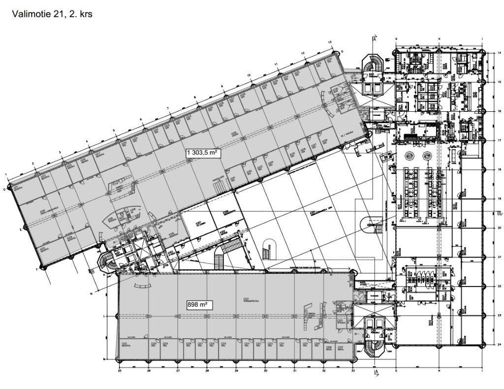
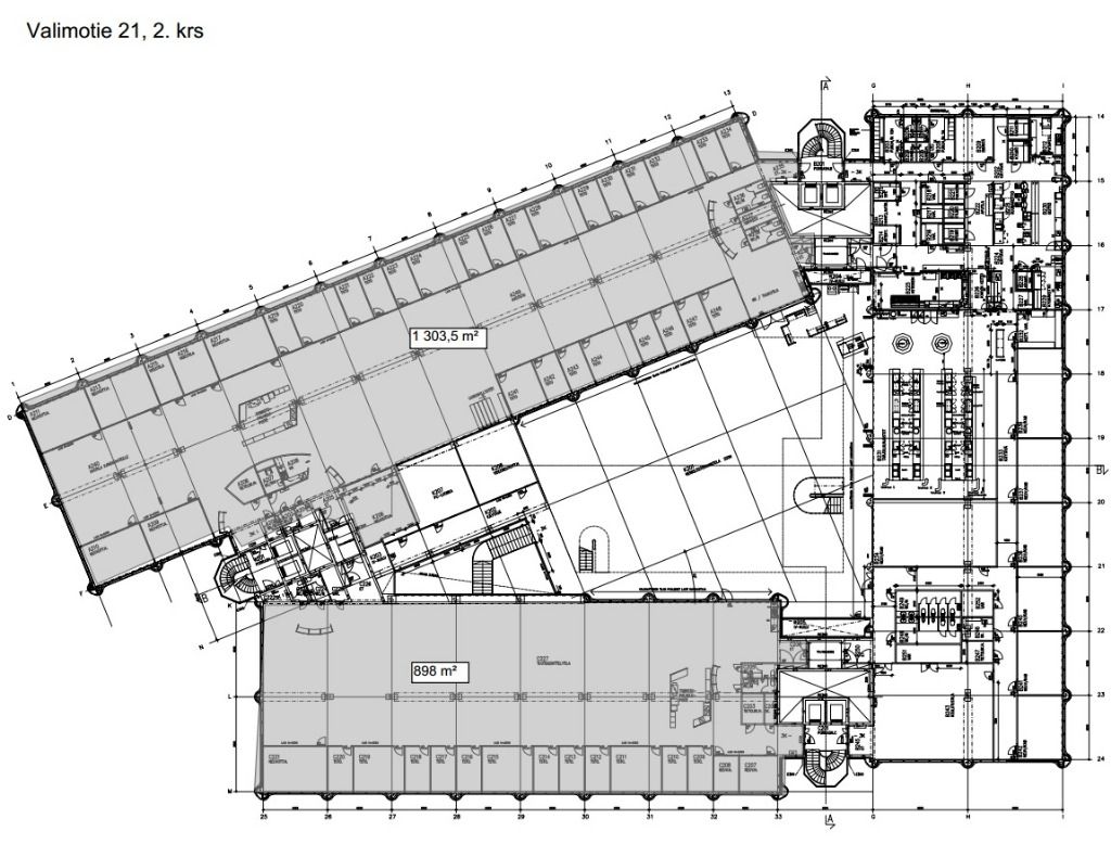
Vuokrattavana viihtyisää ja monipuolista remontoitua toimistotilaa viidennessä kerroksessa. Valimotiellä on loistavat palvelut, kuten lounasravintola ja alavastaanotto sekä laadukkaat kokoustilat, kuten oma 140 hengen auditorio. Autopaikkoja kohteessa on 306 kappaletta. Hyvät lastauslaiturit ja maantasossa varastotilaa
Osoite
Valimotie 21, 00380 Helsinki
Tilatyyppi
Toimistotilaa
764 m2
Vapautuu
Kysy
Ota yhteyttä
Pyydä lisätietoa
