Vuokrataan toimistotilat - Helsinki
Valimotie 13 B, Pitäjänmäki, 00380 Helsinki #10836389
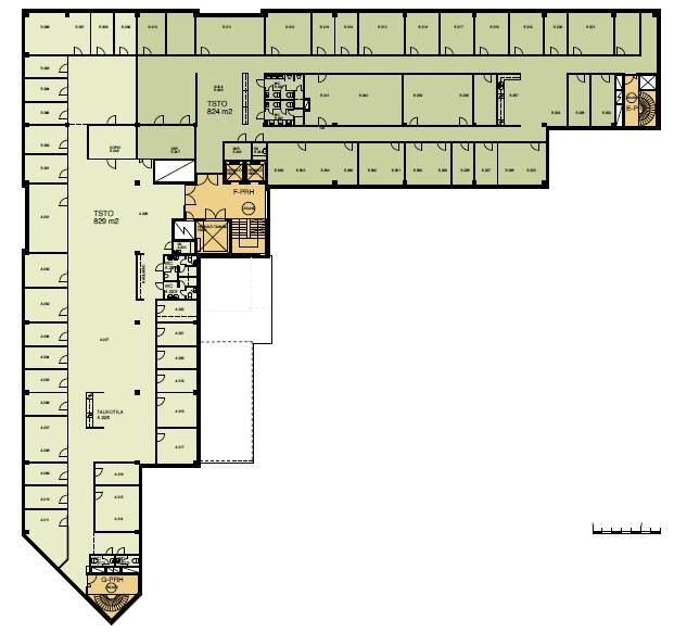
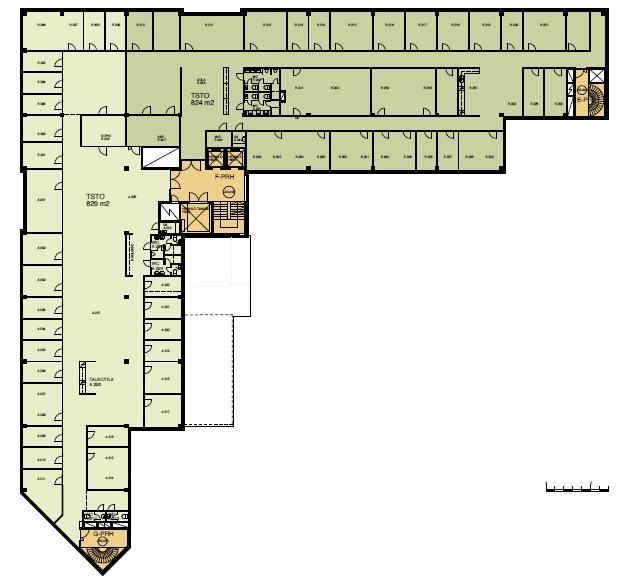
Pitäjänmäellä toimistotilaa.
Kerrosten lukumäärä: 6
Valmistunut vuonna 1987
Koneellinen jäähdytetty ilmanvaihto/erillisjäähdytys
Turvallista kulunvalvottua tilaa
95 autopaikkaa autohallissa
Kohteella iso tavarahissin ja hyvä lastauslaituri
Suosittu lounasravintola Factory
Modernit erikseen vuokrattavat neuvottelutilat löytyvät naapuritalosta
Sauna ja kuntosali
Aulapalvelut
Coorin yrityspalvelut, muun muassa: siivouspalvelu, postitus, tietoliikenne ja –tukipalvelut, toimistokalusteet, tila- ja sisustussuunnittelupalvelut, sekä yksilölliset palveluratkaisut yrityksen tarpeisiin
Osoite
Valimotie 13 B, 00380 Helsinki
Tilatyyppi
Toimistotilaa
621 m2
Vapautuu
Kysy
Ota yhteyttä
Pyydä lisätietoa
