Vuokrataan toimistotilat - Espoo
Kutojantie 7, Kilo, 02630 Espoo #10836385
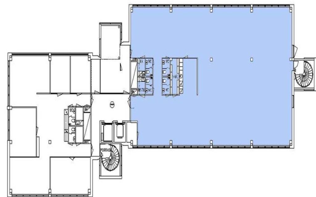
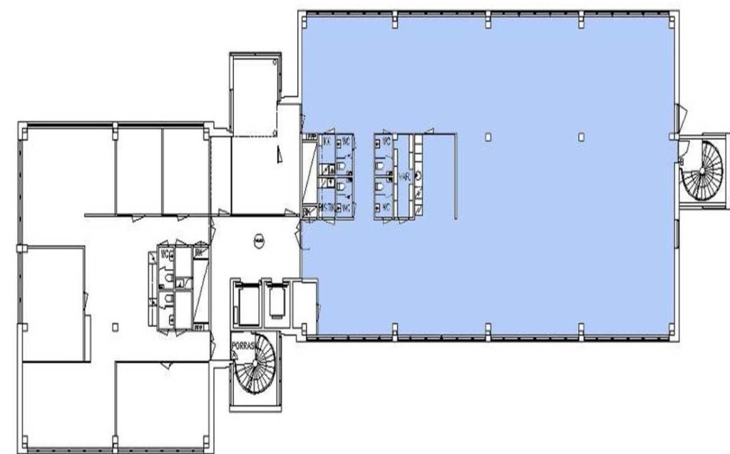
Kolmannen kerroksen käsittävä toimistotila erillisjäähdytyksellä Espoon Kilossa. Kerroksiin on tavarahissiyhteys. Ylimmässä kerroksessa on vuokrattavissa saunaosasto neuvottelutiloineen. Kellarikerroksesta on vuokrattavissa pienvarastotilaa. Kohteeseen on hyvät kulkuyhteydet.
Osoite
Kutojantie 7, 02630 Espoo
Tilatyyppi
Toimistotilaa
481 m2
Vapautuu
Kysy
Kerros
3
Ota yhteyttä
Pyydä lisätietoa
