Vuokrataan toimistotilat - Espoo
Kutojantie 7, Kilo, 02630 Espoo #10836384
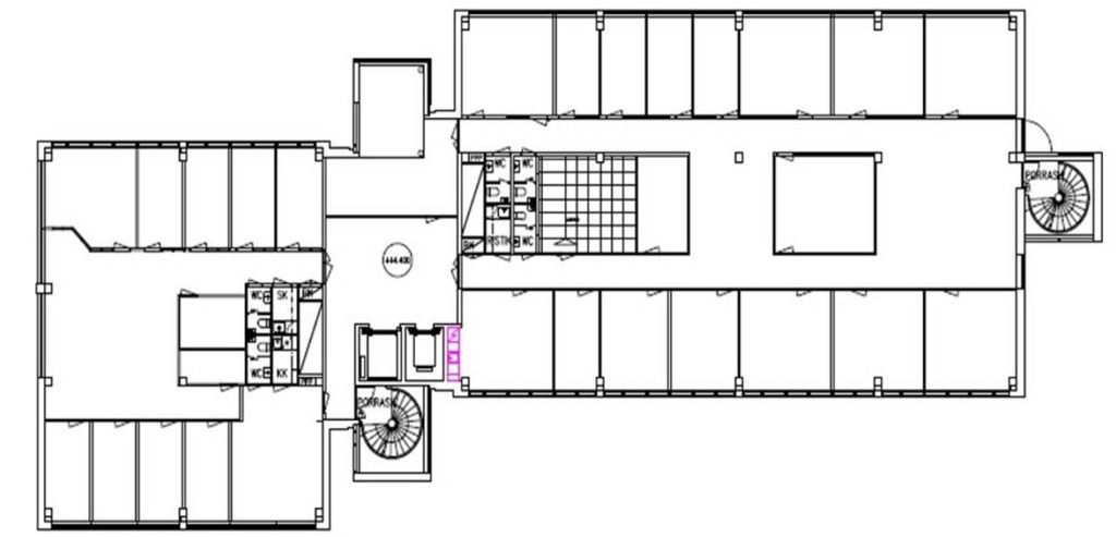
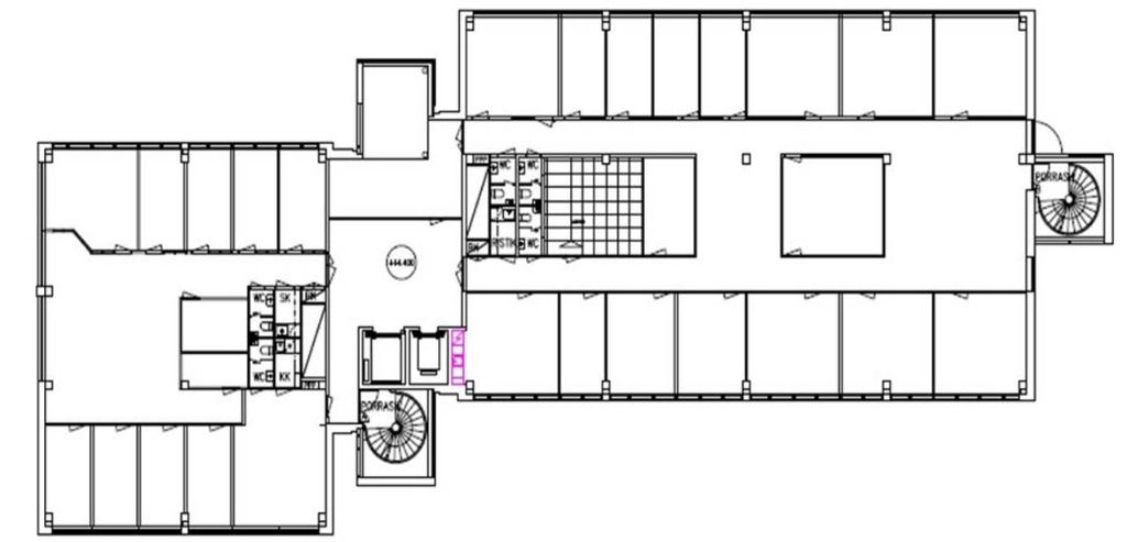
Remontoitu ja siisti koko kerroksen käsittävä toimistotila erillisjäähdytyksellä Espoon Kilossa. Erillinen jäähdytetty serveritila. Kerroksiin on tavarahissiyhteys. Ylimmässä kerroksessa on vuokrattavissa saunaosasto neuvottelutiloineen. Kellarikerroksesta on vuokrattavissa pienvarastotilaa. Kohteeseen on hyvät kulkuyhteydet
Osoite
Kutojantie 7, 02630 Espoo
Tilatyyppi
Toimistotilaa
533 m2
Vapautuu
Kysy
Ota yhteyttä
Pyydä lisätietoa
