Vuokrataan toimistotilat - Helsinki
Valimotie 21, Pitäjänmäki, 00380 Helsinki #10836349
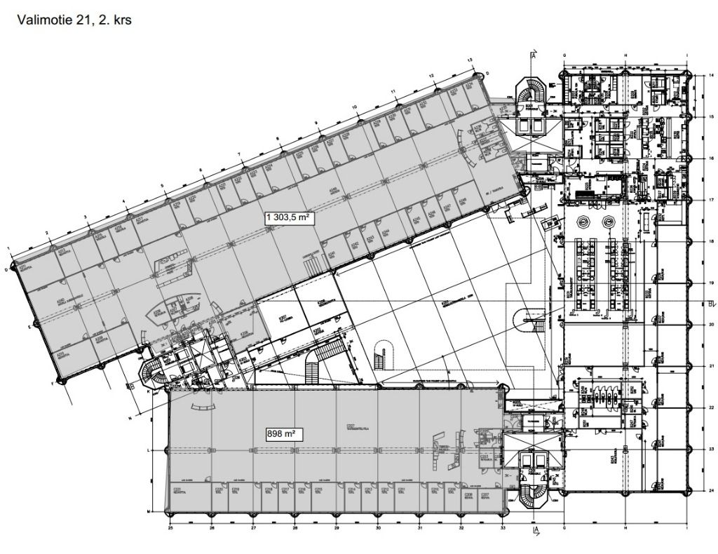
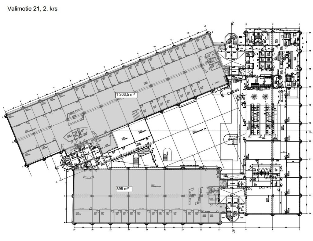
Vuokrattavana viihtyisää ja monipuolista toimistotilaa Nokia-talona tunnetusta tilasta. Valimotiellä on loistavat palvelut, kuten lounasravintola ja alavastaanotto sekä laadukkaat kokoustilat, kuten oma 140 hengen auditorio. Autopaikkoja kohteessa on 306 kappaletta. Hyvät lastauslaiturit ja maantasossa varastotilaa.
Osoite
Valimotie 21, 00380 Helsinki
Tilatyyppi
Toimistotilaa
888 m2
Vapautuu
Kysy
Kerros
4
Ota yhteyttä
Pyydä lisätietoa
