Vuokrataan toimistotilat - Helsinki
Kaupintie 5, Lassila, Helsinki #10836340
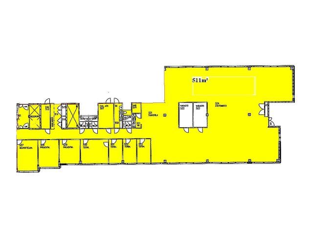
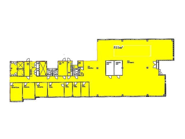
Avotilaa ja työhuoneita sisältävä siisti toimistotila Pohjois-Haagan rautatieaseman läheisyydessä. Mahtava kohde hyvien liikenneyhteyksien varrelta edullisia tilaratkaisuja etsivälle.
Osoite
Kaupintie 5, Helsinki
Tilatyyppi
Toimistotilaa
387 m2
Vapautuu
Kysy
Ota yhteyttä
Pyydä lisätietoa
