Vuokrataan liiketilat - Helsinki
Tammiontie 4, Maunula, 00630 Helsinki #10836324
Helsingin Kanttiini - Liiketila 63 m²
Osoite
Tammiontie 4, 00630 Helsinki
Tilatyyppi
Liiketilaa
63 m2
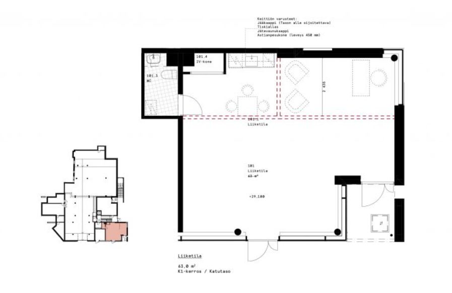
Pohjapiirros
Kiinteistö
Valoisa ja avara liiketila Maunulassa
Uusi, katutason liiketila 63 m² erinomaisella sijainnilla Raide-Jokerin reitin varrella! Tila on avara ja valoisa; suuret ikkunat tuovat runsaasti luonnonvaloa sekä erinomaisen näkyvyyden kadulle. Käytännöllinen keittiönurkkaus ja erillinen WC tekevät tilasta toimivan ja mukavan arjessa. Kaksi sisäänkäyntiä mahdollistavat monipuolisen tilankäytön. Tila sopii erinomaisesti esimerkiksi myymäläksi, kahvilaksi, toimistoksi tai palveluyritykselle.
Tilan varustelu:
Koneellinen tulo- ja poistoilmanvaihto
Varaus rasvahormille
Ilmastointi
Katutason sisäänkäynti
AsOy Helsingin Kanttiini – Liiketilaa Maunulassa
Sijainti
Helsingin Kantiini sijaitsee sijaitsee Pohjois-Helsingissä, erinomaisten kulkuyhteyksien varrella aivan Raide-Jokerin reitin tuntumassa.
Etäisyydet:
Raitiovaunupysäkki 150 m
Bussipysäkki 140 m
Juna-asema 3,3 km
Helsinki-Vantaan lentoasema 12,2 km
Palvelut
Lähialueella sijaitsee monipuolisia palveluita, kuten Maunula-talo, kirjasto, terveysasema, kouluja ja päiväkoteja. Lisäksi alueella on kauppoja, kahviloita ja erinomaiset liikuntamahdollisuudet Pirkkolan urheilupuistossa.
Vastuullisuus
Kiinteistö on valmistunut helmikuussa 2024 ja edustaa modernia, vastuullista rakentamista. Rakennuksessa on maalämpö, koneellinen ilmanvaihto, vesikiertoinen lattialämmitys sekä mukavuuslattialämmitys kylpyhuoneissa, mikä tekee siitä energiatehokkaan ja ympäristöystävällisen.
Ota yhteyttä
Kiinnostuitko? Ota yhteyttä ja tule tutustumaan tiloihin!
Toimitilavälityspalvelumme on toimitilaa etsivälle täysin maksuton.
Uusi, katutason liiketila 63 m² erinomaisella sijainnilla Raide-Jokerin reitin varrella! Tila on avara ja valoisa; suuret ikkunat tuovat runsaasti luonnonvaloa sekä erinomaisen näkyvyyden kadulle. Käytännöllinen keittiönurkkaus ja erillinen WC tekevät tilasta toimivan ja mukavan arjessa. Kaksi sisäänkäyntiä mahdollistavat monipuolisen tilankäytön. Tila sopii erinomaisesti esimerkiksi myymäläksi, kahvilaksi, toimistoksi tai palveluyritykselle.
Tilan varustelu:
Koneellinen tulo- ja poistoilmanvaihto
Varaus rasvahormille
Ilmastointi
Katutason sisäänkäynti
AsOy Helsingin Kanttiini – Liiketilaa Maunulassa
Sijainti
Helsingin Kantiini sijaitsee sijaitsee Pohjois-Helsingissä, erinomaisten kulkuyhteyksien varrella aivan Raide-Jokerin reitin tuntumassa.
Etäisyydet:
Raitiovaunupysäkki 150 m
Bussipysäkki 140 m
Juna-asema 3,3 km
Helsinki-Vantaan lentoasema 12,2 km
Palvelut
Lähialueella sijaitsee monipuolisia palveluita, kuten Maunula-talo, kirjasto, terveysasema, kouluja ja päiväkoteja. Lisäksi alueella on kauppoja, kahviloita ja erinomaiset liikuntamahdollisuudet Pirkkolan urheilupuistossa.
Vastuullisuus
Kiinteistö on valmistunut helmikuussa 2024 ja edustaa modernia, vastuullista rakentamista. Rakennuksessa on maalämpö, koneellinen ilmanvaihto, vesikiertoinen lattialämmitys sekä mukavuuslattialämmitys kylpyhuoneissa, mikä tekee siitä energiatehokkaan ja ympäristöystävällisen.
Ota yhteyttä
Kiinnostuitko? Ota yhteyttä ja tule tutustumaan tiloihin!
Toimitilavälityspalvelumme on toimitilaa etsivälle täysin maksuton.
Vapautuu
Kysy
Kerros
1
Ota yhteyttä
Logistila Oy
Kylätie 11-13, 00320 HELSINKI
Karoliina Turppo
Näytä puhelinnumero
050 345 3258
Pyydä lisätietoa
