Vuokrataan liiketilat - Helsinki
Atlantinkatu 4, Jätkäsaari, 00220 Helsinki #10836278
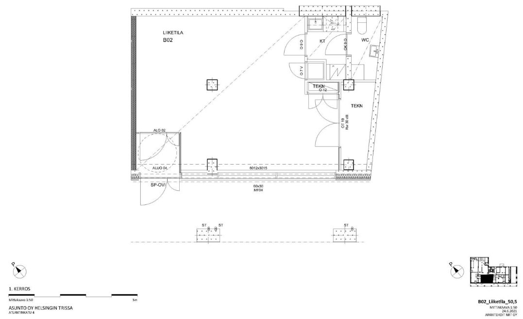
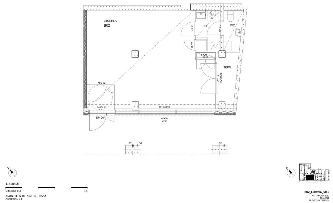
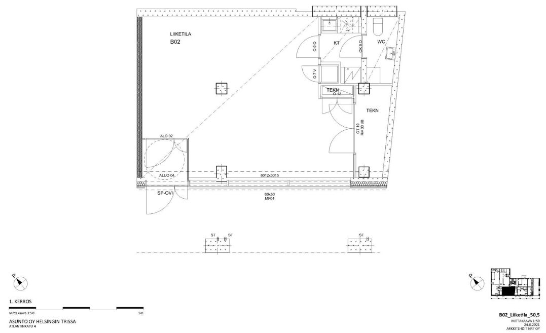
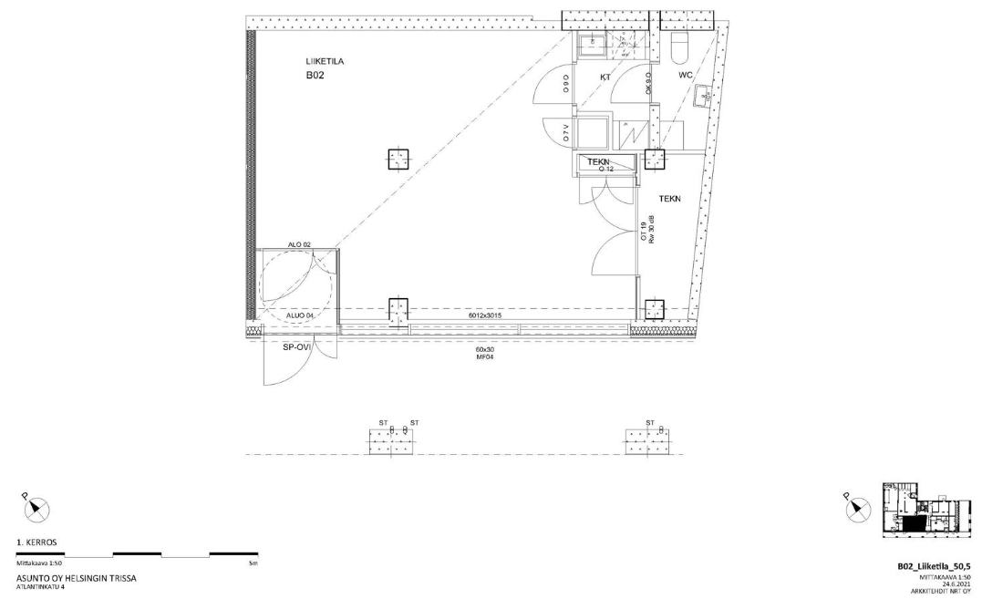
Helsingin Trissa - Liiketila 50,5 m²
Osoite
Atlantinkatu 4, 00220 Helsinki
Tilatyyppi
Liiketilaa
51 m2
Pohjapiirros
Kiinteistö
Valoisa liiketila vilkkaalla sijainnilla Jätkäsaaressa
Tarjolla vuokrattavaksi moderni ja tehokas 50,5 m²:n liiketila vuonna 2023 valmistuneen asuinkiinteistön kivijalasta. Tila on valoisa, uudenveroinen ja muunneltavissa eri käyttötarkoituksiin, esim. myymälä-, palvelu- tai showroom-käyttöön.
Kadulle avautuvat suuret ikkunat tarjoavat erinomaisen näkyvyyden ja mahdollisuuden yrityksen brändin esille tuomiseen. Rakennuksen arkkitehtuuri on värikäs ja näyttävä, ja punainen julkisivu sekä suuret lasipinnat lisäävät näkyvyyttä.
Huomioithan, että tilojen tekniset ominaisuudet eivät salli ruoanvalmistusta.
As Oy Helsingin Trissa – Liiketilaa Jätkäsaaressa
Sijainti
Atlantinkatu 4 sijaitsee Jätkäsaaressa, modernin Helsingin kasvavassa kaupunginosassa, joka tunnetaan merellisestä tunnelmastaan ja urbaanista elämänmenostaan. Tila on katutasossa vilkkaalla kadulla, jossa ihmiset liikkuvat, asuvat ja asioivat päivittäin. Lähimmät raitiovaunu- ja bussipysäkit ovat noin 100 metrin päässä, ja metroasema on kävelyetäisyydellä. Erinomainen saavutettavuus tekee kohteesta houkuttelevan liiketoiminnalle.
Palvelut
Lähialueella on monipuoliset palvelut, kuten ravintoloita, kahviloita, ruokakauppoja, hotelleja, pesula, posti sekä kampaamo/parturi, kaikki kävelyetäisyydellä.
Vastuullisuus
Trissa on moderni uudisrakennus, joka täyttää nykyaikaiset rakentamisen ja energiatehokkuuden vaatimukset. Uusi kiinteistö tarjoaa turvallisen, kestävän ja viihtyisän ympäristön liiketoiminnalle. Rakennuksen suunnittelussa on huomioitu kaupunkikuvan eheys ja energiatehokkuus, mikä tukee vastuullista liiketoimintaa.
Ota yhteyttä
Kiinnostuitko? Ota yhteyttä ja tule tutustumaan tiloihin!
Toimitilavälityspalvelumme on toimitilaa etsivälle täysin maksuton.
Tarjolla vuokrattavaksi moderni ja tehokas 50,5 m²:n liiketila vuonna 2023 valmistuneen asuinkiinteistön kivijalasta. Tila on valoisa, uudenveroinen ja muunneltavissa eri käyttötarkoituksiin, esim. myymälä-, palvelu- tai showroom-käyttöön.
Kadulle avautuvat suuret ikkunat tarjoavat erinomaisen näkyvyyden ja mahdollisuuden yrityksen brändin esille tuomiseen. Rakennuksen arkkitehtuuri on värikäs ja näyttävä, ja punainen julkisivu sekä suuret lasipinnat lisäävät näkyvyyttä.
Huomioithan, että tilojen tekniset ominaisuudet eivät salli ruoanvalmistusta.
As Oy Helsingin Trissa – Liiketilaa Jätkäsaaressa
Sijainti
Atlantinkatu 4 sijaitsee Jätkäsaaressa, modernin Helsingin kasvavassa kaupunginosassa, joka tunnetaan merellisestä tunnelmastaan ja urbaanista elämänmenostaan. Tila on katutasossa vilkkaalla kadulla, jossa ihmiset liikkuvat, asuvat ja asioivat päivittäin. Lähimmät raitiovaunu- ja bussipysäkit ovat noin 100 metrin päässä, ja metroasema on kävelyetäisyydellä. Erinomainen saavutettavuus tekee kohteesta houkuttelevan liiketoiminnalle.
Palvelut
Lähialueella on monipuoliset palvelut, kuten ravintoloita, kahviloita, ruokakauppoja, hotelleja, pesula, posti sekä kampaamo/parturi, kaikki kävelyetäisyydellä.
Vastuullisuus
Trissa on moderni uudisrakennus, joka täyttää nykyaikaiset rakentamisen ja energiatehokkuuden vaatimukset. Uusi kiinteistö tarjoaa turvallisen, kestävän ja viihtyisän ympäristön liiketoiminnalle. Rakennuksen suunnittelussa on huomioitu kaupunkikuvan eheys ja energiatehokkuus, mikä tukee vastuullista liiketoimintaa.
Ota yhteyttä
Kiinnostuitko? Ota yhteyttä ja tule tutustumaan tiloihin!
Toimitilavälityspalvelumme on toimitilaa etsivälle täysin maksuton.
Vapautuu
Kysy
Kerros
1
Ota yhteyttä
LogisTila Oy
Kylätie 11-13, 00320 HELSINKI
Karoliina Turppo
Näytä puhelinnumero
050 345 3258
Pyydä lisätietoa
