Vuokrataan toimistotilat - Helsinki
Kornetintie 3, Pitäjänmäki, 00380 Helsinki #10836271
Toimistotilaa Pitäjänmäeltä
Osoite
Kornetintie 3, 00380 Helsinki
Tilatyyppi
Toimistotilaa
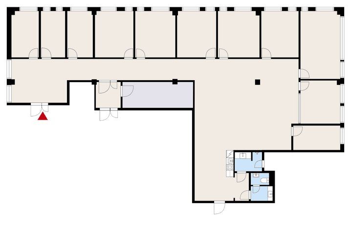
298 m2
Muuta
Vuokrattavana 298 m² toimistotila kolmannessa kerroksessa Pitäjänmäellä.
Toimisto on valoisa ja koostuu erikokoisista huoneista sekä avotilasta, mikä mahdollistaa monipuolisen työskentelyn ja tilaratkaisujen hyödyntämisen erilaisiin tarpeisiin. Kiinteistössä on aulapalvelu sekä kuntosali, sauna- ja neuvottelutilat ja ravintola.
Sijainti on hyvä, ja alue tarjoaa sujuvat kulkuyhteydet niin julkisilla kuin omalla autolla liikuttaessa.
Tila on heti vapaa.
Tervetuloa tutustumaan, varaathan välittäjältä oman esittelyaikasi. Voit kysyä meiltä myös muita sopivia vaihtoehtoja, kauttamme löydät juuri Teidän tarpeisiinne sopivat tilat. Palvelumme on tilanhakijalle veloitukseton!
Toimisto on valoisa ja koostuu erikokoisista huoneista sekä avotilasta, mikä mahdollistaa monipuolisen työskentelyn ja tilaratkaisujen hyödyntämisen erilaisiin tarpeisiin. Kiinteistössä on aulapalvelu sekä kuntosali, sauna- ja neuvottelutilat ja ravintola.
Sijainti on hyvä, ja alue tarjoaa sujuvat kulkuyhteydet niin julkisilla kuin omalla autolla liikuttaessa.
Tila on heti vapaa.
Tervetuloa tutustumaan, varaathan välittäjältä oman esittelyaikasi. Voit kysyä meiltä myös muita sopivia vaihtoehtoja, kauttamme löydät juuri Teidän tarpeisiinne sopivat tilat. Palvelumme on tilanhakijalle veloitukseton!
Vapautuu
Kysy
Kerros
3
Ota yhteyttä
Tuloskiinteistöt Oy
Rikhardinkatu 2 B 5, 00130 Helsinki
Näytä puhelinnumero
(09) 6841 620
Nina Meyke
Commercial Real Estate Advisor
Näytä puhelinnumero
+358 50 466 1519
Jorma Ryynänen
Commercial Real Estate Advisor LKV, LVV
Näytä puhelinnumero
+358 40 708 4064
Pyydä lisätietoa
