Vuokrataan toimistotilat - Helsinki
Kuortaneenkatu 5, Vallila, 00520 Helsinki #10836245
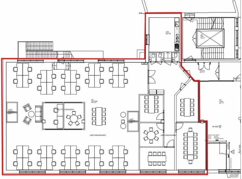
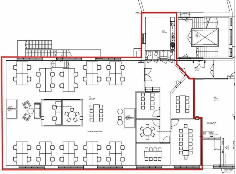
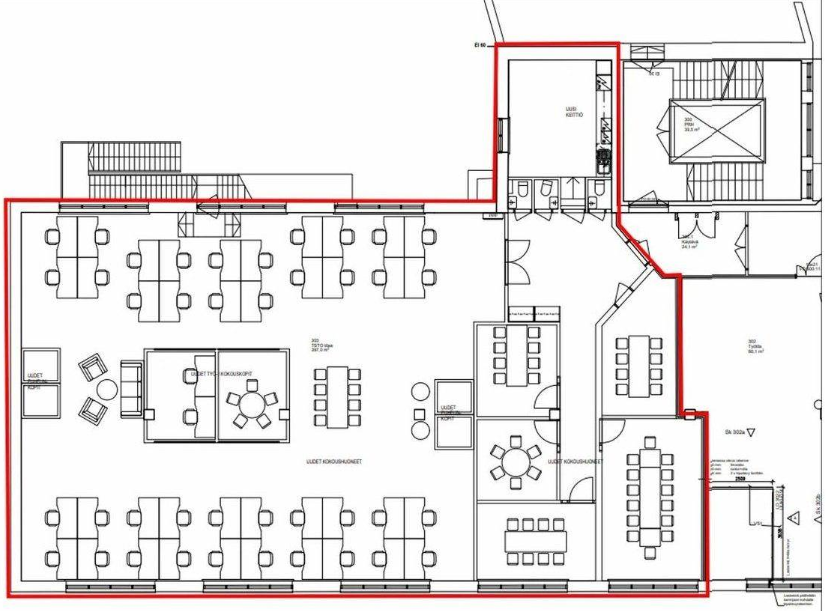
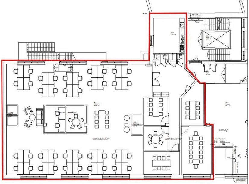
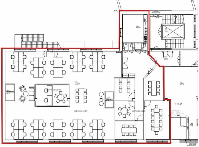
Tekosilkkikutomo - Toimisto 415 m²
Osoite
Kuortaneenkatu 5, 00520 Helsinki
Tilatyyppi
Toimistotilaa
415 m2
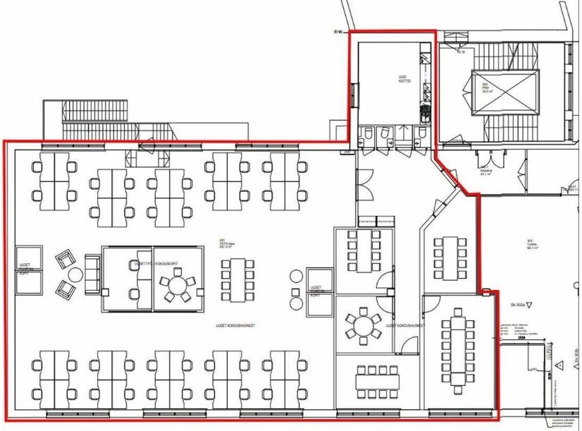
Pohjapiirros
Kiinteistö
Vuokrattavana moderni toimistotila Vallilassa
Vuokrattavana kolmannen kerroksen moderni ja hyväkuntoinen 415 m² toimistotila historiallisessa Tekosilkkikutomon kiinteistössä Vallilassa. Tilaan on suunniteltu toteutettavaksi avotoimistoalueita ja erikokoisia kokous-/projektihuoneita ja tilaratkaisuja voidaan muokata käyttäjän tarpeiden mukaisesti. Tilassa on myös suuret ikkunat, jotka tuovat runsaasti luonnonvaloa ja tekevät työympäristöstä viihtyisän ja avaran. Huonekorkeus on palkkien väliin n. 4,57 m.
Kiinteistössä on ilmastointi ja tavarahissi, ja sen teollisuushenkinen tunnelma yhdistyy moderniin toimistomukavuuteen.
Tämä tila tarjoaa inspiroivan ympäristön luoville ja kasvaville tiimeille. Ota yhteyttä ja sovi esittely – tämä tila kannattaa nähdä paikan päällä.
Tekosilkkikutomo – Teollisuushistoriaa ja modernia toimistotilaa
Vuonna 1938 valmistunut Tekosilkkikutomo on entinen teollisuuskiinteistö, joka on uudistettu nykyaikaiseksi ja persoonalliseksi toimistotaloksi. Saneerauksen myötä tiloihin on tuotu modernit mukavuudet ja toiminnallisuus, säilyttäen samalla rakennuksen alkuperäinen, rouhea luonne. Lopputuloksena on inspiroiva työympäristö, jossa historia kohtaa nykyajan.
Sijainti – Vallilan urbaani sydän
Tekosilkkikutomo sijaitsee Vallilassa, osana nopeasti kehittyvää kantakaupunkia, jossa vanhat teollisuusalueet muuttuvat eläväksi osaksi kaupunkikulttuuria. Alueella yhdistyvät asuminen, yritystoiminta ja luova tekeminen.
Pasilan asema ja Triplan ostoskeskus ovat vain noin 10 minuutin kävelymatkan päässä, tarjoten erinomaiset yhteydet ja palvelut. Raitiovaunu- ja bussipysäkit ovat vain parin minuutin päässä, ja junalla pääsee Helsingin keskustaan alle 10 minuutissa.
Etäisyydet:
Raitiovaunupysäkki: 190 m
Bussipysäkki: 240 m
Juna-asema (Pasila): 960 m
Helsinki-Vantaan lentoasema: 15 km
Palvelut – Kaikki tarvittava lähellä
Kiinteistön edessä on pysäköintipaikkoja, ja lähistöllä sijaitsee Aimo Park Vallila -pysäköintilaitos.
Lähialueelta löytyy monipuolisesti palveluita, kuten:
Ravintoloita ja kahviloita
Kuntosali
Kampaamo/parturi
Ruokakauppa
Pesula ja autopesula
Kirjasto
Vastuullisuus – Vanhaa vaalien, uutta rakentaen
Tekosilkkikutomon uudistus on toteutettu vastuullisesti, kunnioittaen rakennuksen alkuperäistä arkkitehtuuria ja historiaa. Kiinteistön muuntaminen moderniksi toimistotaloksi tukee kestävää kaupunkikehitystä, jossa vanhaa ei pureta, vaan päivitetään uuteen käyttöön. Tämä tarjoaa yrityksille mahdollisuuden toimia tiloissa, jotka ovat sekä ympäristötietoisia että kulttuurisesti merkityksellisiä.
Ota yhteyttä
Kiinnostuitko? Ota yhteyttä ja tule tutustumaan! Toimitilavälityspalvelumme on tilanhakijalle maksuton.
Vuokrattavana kolmannen kerroksen moderni ja hyväkuntoinen 415 m² toimistotila historiallisessa Tekosilkkikutomon kiinteistössä Vallilassa. Tilaan on suunniteltu toteutettavaksi avotoimistoalueita ja erikokoisia kokous-/projektihuoneita ja tilaratkaisuja voidaan muokata käyttäjän tarpeiden mukaisesti. Tilassa on myös suuret ikkunat, jotka tuovat runsaasti luonnonvaloa ja tekevät työympäristöstä viihtyisän ja avaran. Huonekorkeus on palkkien väliin n. 4,57 m.
Kiinteistössä on ilmastointi ja tavarahissi, ja sen teollisuushenkinen tunnelma yhdistyy moderniin toimistomukavuuteen.
Tämä tila tarjoaa inspiroivan ympäristön luoville ja kasvaville tiimeille. Ota yhteyttä ja sovi esittely – tämä tila kannattaa nähdä paikan päällä.
Tekosilkkikutomo – Teollisuushistoriaa ja modernia toimistotilaa
Vuonna 1938 valmistunut Tekosilkkikutomo on entinen teollisuuskiinteistö, joka on uudistettu nykyaikaiseksi ja persoonalliseksi toimistotaloksi. Saneerauksen myötä tiloihin on tuotu modernit mukavuudet ja toiminnallisuus, säilyttäen samalla rakennuksen alkuperäinen, rouhea luonne. Lopputuloksena on inspiroiva työympäristö, jossa historia kohtaa nykyajan.
Sijainti – Vallilan urbaani sydän
Tekosilkkikutomo sijaitsee Vallilassa, osana nopeasti kehittyvää kantakaupunkia, jossa vanhat teollisuusalueet muuttuvat eläväksi osaksi kaupunkikulttuuria. Alueella yhdistyvät asuminen, yritystoiminta ja luova tekeminen.
Pasilan asema ja Triplan ostoskeskus ovat vain noin 10 minuutin kävelymatkan päässä, tarjoten erinomaiset yhteydet ja palvelut. Raitiovaunu- ja bussipysäkit ovat vain parin minuutin päässä, ja junalla pääsee Helsingin keskustaan alle 10 minuutissa.
Etäisyydet:
Raitiovaunupysäkki: 190 m
Bussipysäkki: 240 m
Juna-asema (Pasila): 960 m
Helsinki-Vantaan lentoasema: 15 km
Palvelut – Kaikki tarvittava lähellä
Kiinteistön edessä on pysäköintipaikkoja, ja lähistöllä sijaitsee Aimo Park Vallila -pysäköintilaitos.
Lähialueelta löytyy monipuolisesti palveluita, kuten:
Ravintoloita ja kahviloita
Kuntosali
Kampaamo/parturi
Ruokakauppa
Pesula ja autopesula
Kirjasto
Vastuullisuus – Vanhaa vaalien, uutta rakentaen
Tekosilkkikutomon uudistus on toteutettu vastuullisesti, kunnioittaen rakennuksen alkuperäistä arkkitehtuuria ja historiaa. Kiinteistön muuntaminen moderniksi toimistotaloksi tukee kestävää kaupunkikehitystä, jossa vanhaa ei pureta, vaan päivitetään uuteen käyttöön. Tämä tarjoaa yrityksille mahdollisuuden toimia tiloissa, jotka ovat sekä ympäristötietoisia että kulttuurisesti merkityksellisiä.
Ota yhteyttä
Kiinnostuitko? Ota yhteyttä ja tule tutustumaan! Toimitilavälityspalvelumme on tilanhakijalle maksuton.
Vapautuu
Kysy
Kerros
3
Ota yhteyttä
Logistila Oy
Kylätie 11-13, 00320 HELSINKI
Karoliina Turppo
Näytä puhelinnumero
050 345 3258
Pyydä lisätietoa
