Vuokrataan toimistotilat, liiketilat, varastotilat, työtilat - Loviisa
Karlskronabulevardi 3, 07900 Loviisa #10836243
Vuokrataan hyvä liiketila Loviisan keskustasta!
Osoite
Karlskronabulevardi 3, 07900 Loviisa
Tilatyyppi
Toimistotilaa
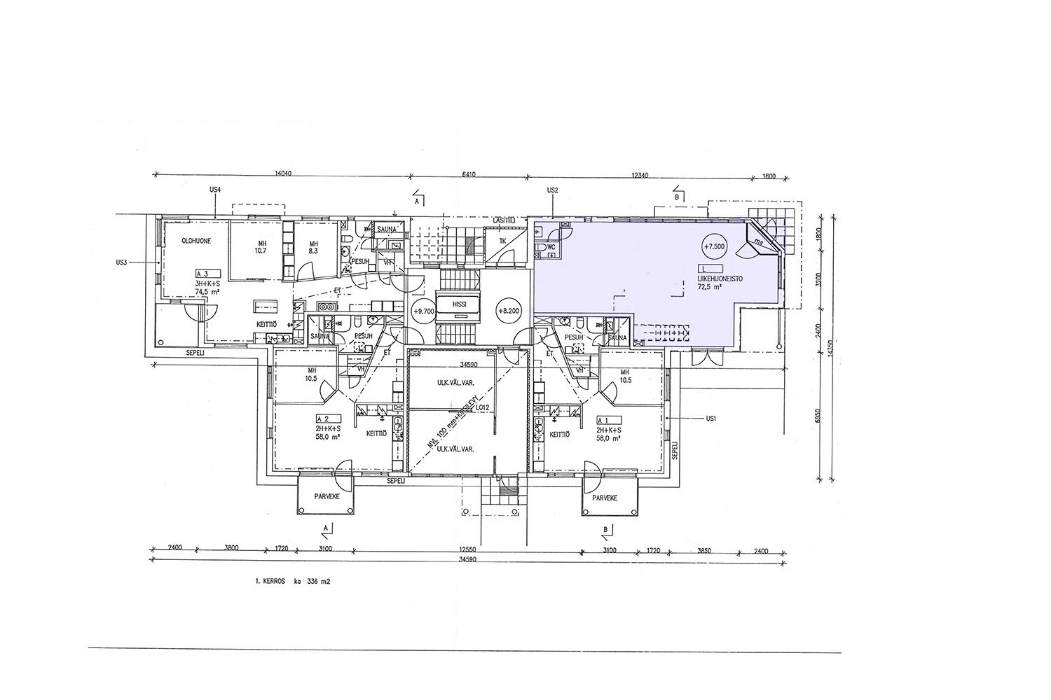
72,5 m2
Liiketilaa
72,5 m2
Varastotilaa
73,3 m2
Työtilaa
145,8 m2
Yhteensä
72,5 - 145,8 m2
Virtuaaliesittely
Vuokra
Alkaen 699 €/kk, alv-vapaa
Vuokraan sisältyy lämpö
Muuta
Vuokrataan hyvä liiketila Loviisan keskustasta. Isot näyteikkunat Karlskronabulevardille, missä runsaasti pysäköintitilaa.
Tilassa on wc-tila ja suihku/siivouskomero. Paikka pienelle keittiölle, missä nyt rst-kaatoallas. Viilennykseen on vanha ilmalämpöpumppu. Tilaan kulku kulmasta ja takapihalta pariovesta.
Katutason tilan pinta-ala on 72,5 m² ja kellarista lisätilaa 73,3 m² sekä tarvittaessa 103 m² lisää kellarivarastotilaa. Tilat voidaan vuokrata yhdessä tai erikseen.
Tila sopii myymäläksi, kampaamoksi, toimistoksi… Omistaja voi myös myydä tilan!
Kohdetiedot
Sijainti
Osoite: Karlskronabulevardi 3, 07900 Loviisa
Kaupunginosa: Keskusta
Ympäristö: Keskusta
Rakennus/huoneisto
Pinta-alat: Liiketila 72,5 m² ja kellari 73,3 m² + optiona lisää kellaritilaa
Kiinteistötyyppi: Kerrostalo
Rakennusvuosi: 2001
Tilatyyppi: Liiketila
Energiatodistus: Ei lain edellyttämää todistusta
Kunto, varusteet ja palvelut: Liiketila/toimisto, kellarissa varasto, vesipiste, siivouskomero/suihku ja wc. Kaikki Loviisan keskustan palvelut
Pysäköinti: Kadulla
Lämmitys: Kaukolämmitys
Vapautuu: Heti vapaa
Vuokrahinta ja kulut
Kuukausivuokra: Alkaen 699 €/kk (katutason liiketila) tai koko tila 899 €/kk (alv-vapaa vuokra)
Sähkö: Mittauksen mukaan
Vesimaksu: Taloyhtiön taksojen mukaan
Lämmitys: Sisältyy vuokraan
Muuta: Minimisopimuskausi 12 kk, vakuus 3 kk:n vuokraa vastaava summa, luottotietojen oltava kunnossa
Tilassa on wc-tila ja suihku/siivouskomero. Paikka pienelle keittiölle, missä nyt rst-kaatoallas. Viilennykseen on vanha ilmalämpöpumppu. Tilaan kulku kulmasta ja takapihalta pariovesta.
Katutason tilan pinta-ala on 72,5 m² ja kellarista lisätilaa 73,3 m² sekä tarvittaessa 103 m² lisää kellarivarastotilaa. Tilat voidaan vuokrata yhdessä tai erikseen.
Tila sopii myymäläksi, kampaamoksi, toimistoksi… Omistaja voi myös myydä tilan!
Kohdetiedot
Sijainti
Osoite: Karlskronabulevardi 3, 07900 Loviisa
Kaupunginosa: Keskusta
Ympäristö: Keskusta
Rakennus/huoneisto
Pinta-alat: Liiketila 72,5 m² ja kellari 73,3 m² + optiona lisää kellaritilaa
Kiinteistötyyppi: Kerrostalo
Rakennusvuosi: 2001
Tilatyyppi: Liiketila
Energiatodistus: Ei lain edellyttämää todistusta
Kunto, varusteet ja palvelut: Liiketila/toimisto, kellarissa varasto, vesipiste, siivouskomero/suihku ja wc. Kaikki Loviisan keskustan palvelut
Pysäköinti: Kadulla
Lämmitys: Kaukolämmitys
Vapautuu: Heti vapaa
Vuokrahinta ja kulut
Kuukausivuokra: Alkaen 699 €/kk (katutason liiketila) tai koko tila 899 €/kk (alv-vapaa vuokra)
Sähkö: Mittauksen mukaan
Vesimaksu: Taloyhtiön taksojen mukaan
Lämmitys: Sisältyy vuokraan
Muuta: Minimisopimuskausi 12 kk, vakuus 3 kk:n vuokraa vastaava summa, luottotietojen oltava kunnossa
Vapautuu
Heti
Rakennusvuosi
2001
Kerros
1 / 1
Katutasossa
Näkyvällä paikalla
Ota yhteyttä
Tilat.fi
KTM, LKV Antti Soivio
Näytä puhelinnumero
0400 446 553
OTM, LKV Riikka Tuominen
Näytä puhelinnumero
0400 551 790
KTM, LKV Maria-Sofia Puhakka
Näytä puhelinnumero
0400-150330
MBA, LKV Susanne Wallenius
Näytä puhelinnumero
0400-128877
Yrityksen virallinen nimi: LKV Tilat.fi Oy.
Toimitilojen välitykseen erikoistunut yritys.
Pyydä lisätietoa
