Vuokrataan toimistotilat - Oulu
Elektroniikkatie 2, Linnanmaa, 90590 Oulu #10836160
Toimistotilaa Oulun Technopolis Linnanmaassa.
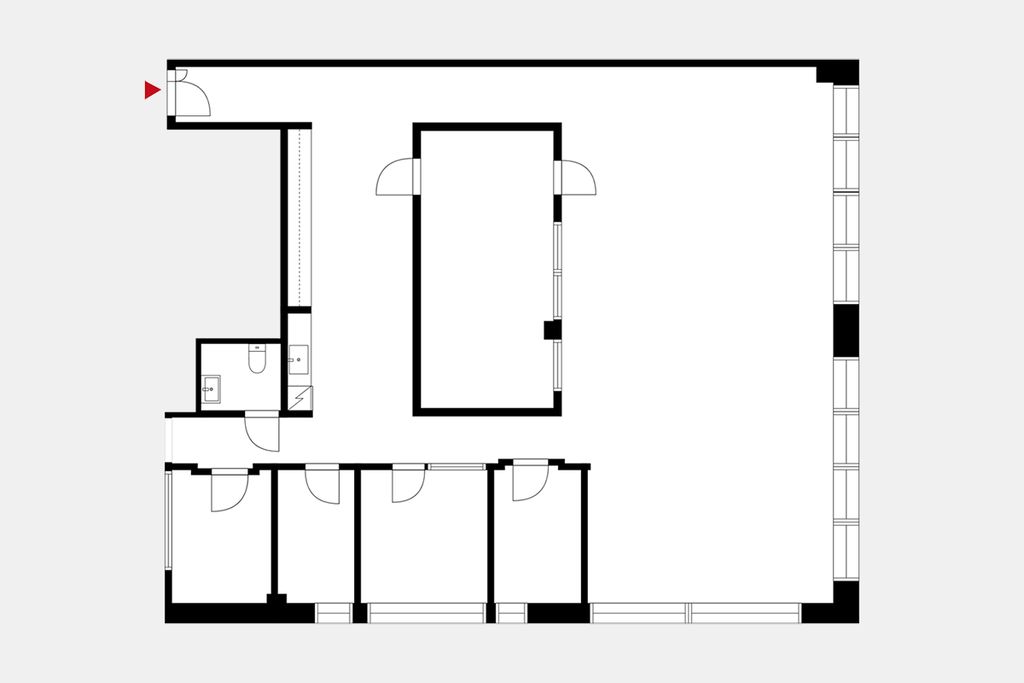
Kyseinen 222 m² toimisto sijaitsee kiinteistön 3. kerroksessa. Tilassa on avotilan lisäksi erillisiä huoneita sekä omat keittiö- ja wc-tilat.
Technopolis Linnanmaa on yksi Euroopan merkittävimmistä ICT-teknologian kehityskeskuksista. Technopoliksella on Linnanmaan alueella 30 kiinteistöä ja satoja yrityksiä vuokralaisena. Technopolis tarjoaa kattavan palveluvalikoiman sekä tapahtumia, joissa yritykset pääsevät verkostoitumaan. Ainutlaatuinen palvelukonsepti sekä viihtyisät toimitilat takaavat erinomaisen ympäristön sekä pienille että suurille yrityksille.
Kysy lisää numerosta 044 723 4700 tai info@bref.fi. Palvelumme on tilanhakijoille ilmainen.
Bureau Real Estate Finland Oy
Lars Sonckin kaari 16, 02600 Espoo
Näytä puhelinnumero
0447234700
Bureau Real Estate Finland Oy
https://www.bref.fi