Vuokrataan toimistotilat - Helsinki
Vuorikatu 20, Kaisaniemi, 00100 Helsinki #10836123
Toimistotilaa ydinkeskustasta Kaisanniemestä
Osoite
Vuorikatu 20, 00100 Helsinki
Tilatyyppi
Toimistotilaa
645 m2
Muuta
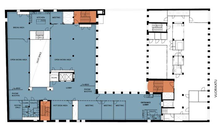
Vuokrattavana 645 m² toimistotila kolmannessa kerroksessa erinomaisella sijainnilla Kaisaniemessä. Tila on heti vapaa ja tarjoaa monipuoliset mahdollisuudet erilaisiin toimistotarpeisiin. Tilaa voidaan tarvittaessa muokata vuokralaisen tarpeiden mukaan. Ilmoituksen sisäkuvat ovat havainnekuvia ja esittelevät mahdollisen toteutuksen.
Tilaan on mahdollista sijoittaa työpisteet 40â50 henkilölle. Lisäksi on hyvin tilaa ryhmätyöskentelyyn ja neuvottelutiloihin, mikä tukee monimuotoista työskentelyä. Pohjaratkaisu mahdollistaa toimivan ja tehokkaan työympäristön isommallekin tiimille.
Vuorikatu 20 on tyylikäs ja moderni toimistotalo, josta löytyy vuokrattavaa toimitilaa yhteensä seitsemässä kerroksessa. Vuonna 1939 valmistunut rakennus toimi aikanaan Tampereen Rohdoksen toimisto- ja laboratoriotiloina, mutta on myöhemmin uudistettu vastaamaan nykyaikaisen toimistokäytön tarpeita.
Sijainti on erinomainen aivan Helsingin ytimessä: rakennuksesta on suora yhteys rautatieasemalle, metrotunnelin kauppoihin ja ravintoloihin sekä Yliopistonkadulle. Keskustan palvelut ja ravintolatarjonta ovat kaikki lyhyen kävelymatkan päässä.
Kiinteistön palveluihin kuuluu oma pysäköintihalli, jossa on 16 autopaikkaa. Lisäksi talon edessä on kadunvarsipysäköintiä, ja EuroPark P-Kluuvi -pysäköintilaitoksen sisäänkäynti sijaitsee vain parin minuutin kävelymatkan etäisyydellä.
Tervetuloa tutustumaan, varaathan välittäjältä oman esittelyaikasi. Voit kysyä meiltä myös muita sopivia vaihtoehtoja, kauttamme löydät juuri Teidän tarpeisiinne sopivat tilat. Palvelumme on tilanhakijalle veloitukseton!
Tilaan on mahdollista sijoittaa työpisteet 40â50 henkilölle. Lisäksi on hyvin tilaa ryhmätyöskentelyyn ja neuvottelutiloihin, mikä tukee monimuotoista työskentelyä. Pohjaratkaisu mahdollistaa toimivan ja tehokkaan työympäristön isommallekin tiimille.
Vuorikatu 20 on tyylikäs ja moderni toimistotalo, josta löytyy vuokrattavaa toimitilaa yhteensä seitsemässä kerroksessa. Vuonna 1939 valmistunut rakennus toimi aikanaan Tampereen Rohdoksen toimisto- ja laboratoriotiloina, mutta on myöhemmin uudistettu vastaamaan nykyaikaisen toimistokäytön tarpeita.
Sijainti on erinomainen aivan Helsingin ytimessä: rakennuksesta on suora yhteys rautatieasemalle, metrotunnelin kauppoihin ja ravintoloihin sekä Yliopistonkadulle. Keskustan palvelut ja ravintolatarjonta ovat kaikki lyhyen kävelymatkan päässä.
Kiinteistön palveluihin kuuluu oma pysäköintihalli, jossa on 16 autopaikkaa. Lisäksi talon edessä on kadunvarsipysäköintiä, ja EuroPark P-Kluuvi -pysäköintilaitoksen sisäänkäynti sijaitsee vain parin minuutin kävelymatkan etäisyydellä.
Tervetuloa tutustumaan, varaathan välittäjältä oman esittelyaikasi. Voit kysyä meiltä myös muita sopivia vaihtoehtoja, kauttamme löydät juuri Teidän tarpeisiinne sopivat tilat. Palvelumme on tilanhakijalle veloitukseton!
Vapautuu
Kysy
Kerros
3
Ota yhteyttä
Tuloskiinteistöt Oy
Rikhardinkatu 2 B 5, 00130 Helsinki
Näytä puhelinnumero
(09) 6841 620
Nina Meyke
Commercial Real Estate Advisor
Näytä puhelinnumero
+358 50 466 1519
Jorma Ryynänen
Commercial Real Estate Advisor LKV, LVV
Näytä puhelinnumero
+358 40 708 4064
Pyydä lisätietoa
