Vuokrataan varastotilat - Helsinki
Hiomotie 6, Pitäjänmäki, 00380 Helsinki #10836120
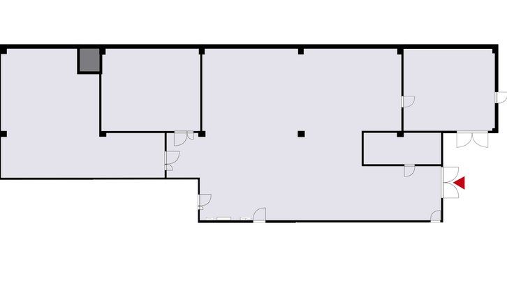
Varastotilaa Pitäjänmäeltä
Osoite
Hiomotie 6, 00380 Helsinki
Tilatyyppi
Varastotilaa
371 m2
Muuta
Vuokrattavana 371 m² varastotilaa kellari kerroksessa Pitäjänmäellä. Sijainti tarjoaa hyvät julkiset liikenneyhteydet ja alueella on kattavat palvelut sekä useita lounasravintoloita.
Tila on heti vapaa ja valmis otettavaksi käyttöön. Tilassa tavarahissiyhteys, mikä helpottaa tavaroiden liikuttamista.
Hiomotie 6 tarjoaa vuokralaisilleen täyden palvelun työympäristön, jossa joustavat ja muunneltavat toimitilat tukevat erilaisten yritysten tarpeita. Kohteessa on tarjolla modernia toimistotilaa sekä kellarikerroksessa sijaitsevia tilavia varastotiloja.
Kiinteistön palveluihin kuuluu aulapalvelu ja oma lounasravintola, jotka tekevät arjesta sujuvaa. Lisäksi vuokralaiset voivat hyödyntää talon viihtyisiä neuvottelutiloja sekä hyvin varusteltua kuntosalia.
Kohteessa ja sen ympäristössä on hyvin pysäköintipaikkoja, mikä helpottaa sekä henkilöstön että vieraiden liikkumista.
Tervetuloa tutustumaan, varaathan välittäjältä oman esittelyaikasi. Voit kysyä meiltä myös muita sopivia vaihtoehtoja, kauttamme löydät juuri Teidän tarpeisiinne sopivat tilat. Palvelumme on tilanhakijalle veloitukseton!
Tila on heti vapaa ja valmis otettavaksi käyttöön. Tilassa tavarahissiyhteys, mikä helpottaa tavaroiden liikuttamista.
Hiomotie 6 tarjoaa vuokralaisilleen täyden palvelun työympäristön, jossa joustavat ja muunneltavat toimitilat tukevat erilaisten yritysten tarpeita. Kohteessa on tarjolla modernia toimistotilaa sekä kellarikerroksessa sijaitsevia tilavia varastotiloja.
Kiinteistön palveluihin kuuluu aulapalvelu ja oma lounasravintola, jotka tekevät arjesta sujuvaa. Lisäksi vuokralaiset voivat hyödyntää talon viihtyisiä neuvottelutiloja sekä hyvin varusteltua kuntosalia.
Kohteessa ja sen ympäristössä on hyvin pysäköintipaikkoja, mikä helpottaa sekä henkilöstön että vieraiden liikkumista.
Tervetuloa tutustumaan, varaathan välittäjältä oman esittelyaikasi. Voit kysyä meiltä myös muita sopivia vaihtoehtoja, kauttamme löydät juuri Teidän tarpeisiinne sopivat tilat. Palvelumme on tilanhakijalle veloitukseton!
Vapautuu
Kysy
Kerros
kellari
Ota yhteyttä
Tuloskiinteistöt Oy
Rikhardinkatu 2 B 5, 00130 Helsinki
Näytä puhelinnumero
(09) 6841 620
Nina Meyke
Commercial Real Estate Advisor
Näytä puhelinnumero
+358 50 466 1519
Otto Ahtola
Commercial Real Estate Advisor
Näytä puhelinnumero
+358 40 042 2830
Pyydä lisätietoa
