Vuokrataan toimistotilat - Espoo
Piispanportti 11, Matinkylä, 02240 Espoo #10836104
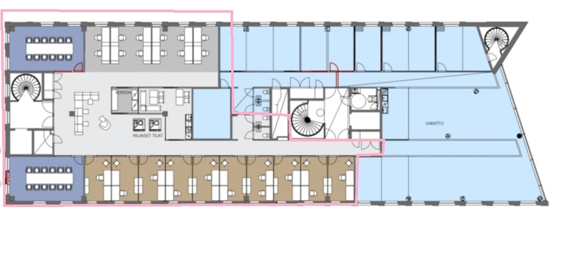
Viimeistä viedään! The Loft Housen viimeinen vapaa tila, kerroksessa 4. Tähän puolikkaaseen toimistokerrokseen saa tilaratkaisusta riippuen työpisteet noin 24-35 henkilön organisaatiolle. ihana industriaalinen henki vaikka uudiskohde onkin. Loppuviimeistely tehdään uuden käyttäjän toiveiden ja tarpeiden mukaan, mm. keittiötä ei ole valittu vielä puolestanne.
Iso Omena ja muu Matinkylä näkyy valoisista ikkunoista. Ennen työpäivää tai sen jälkeen (miksei kesken päivänkin) voi käydä ylimmän kerroksen kuntosalissa treenaamassa samalla kuin vaikkapa oma sähköauto latautuu paikallaan. Aulapalvelu ottaa vieraat vastaan ja tyylikkäät vuokrattavat kokoushuoneet löytyvät sisääntulokerroksesta.
Talossa vuokralaisina mm. Ricoh, Eke-Rakennus, BO Lkv, Xplora Mobile, Rainmaker ja Quattroservices.
Metrolle kävelee noin kuudessa minuutissa, jos alakerran lounas ei houkuttele, on lähistöllä vaihtoehtoja vaikka mihin. Kotiin lähtiessä voi parinsadan metrin päässä pysähtyä Prismassa niin on samalla matkalla kauppareissukin tehty.
Aivan Länsiväylän varrelle valmistui moderni ja muuntojoustava toimistokiinteistö 2021 - The Loft House. Se tarjoaa erinomaisen sijainnin kasvavan toimisto- ja palveluympäristön ytimessä. Lähialueen monipuoliset palvelut, erinomaiset julkisen liikenteen yhteydet ja kiinteistön kestävästi suunnitellut, terveelliset ja energiatehokkaat ratkaisut ja sertifioudut tilat tekevät toimistotalosta vetovoimaisen työympäristön.
Croisette on uusi ja innovatiivinen toimitilojen välitysyritys Suomessa. Meillä on vahva halu auttaa teitä löytämään paras toimitilaratkaisu mahdollisimman vaivattomasti.
Huomaathan, että kaikki vapaat ja vapautuvat tilat ovat kauttamme saatavilla. Osa tiloista on hiljaisessa markkinoinnissa, mutta ottamalla meihin yhteyttä saat nekin tietoosi.
Palvelumme on tilanhakijoille täysin maksutonta.
Croisette Real Estate Partner
Erottajankatu 5 A 6, 00130 Helsinki
Näytä puhelinnumero
+358 400 585 857
Croisette Vuokraus
Näytä puhelinnumero
+358400585857
