Vuokrataan varastotilat - Helsinki
Lönnrotinkatu 11, Kamppi, 00120 Helsinki #10836045
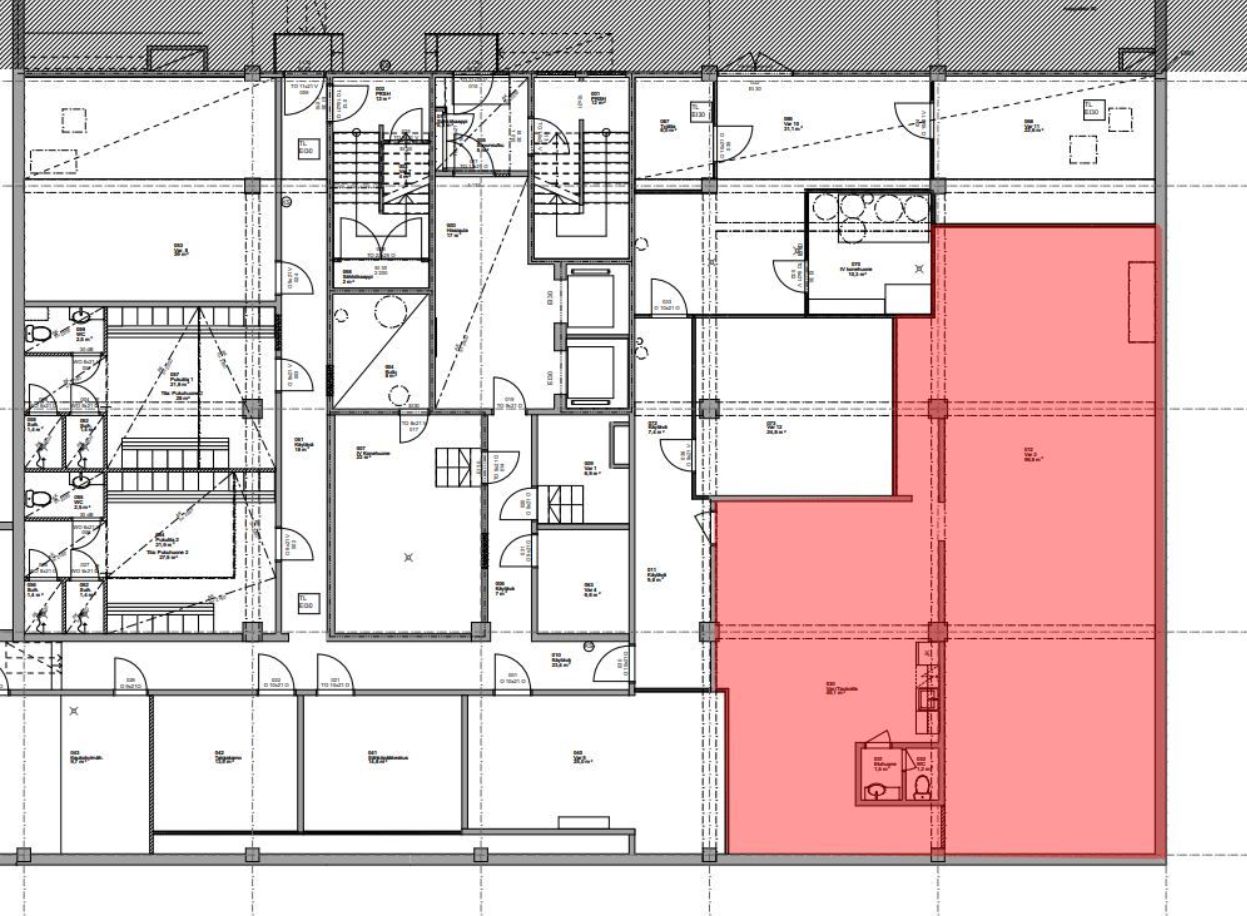
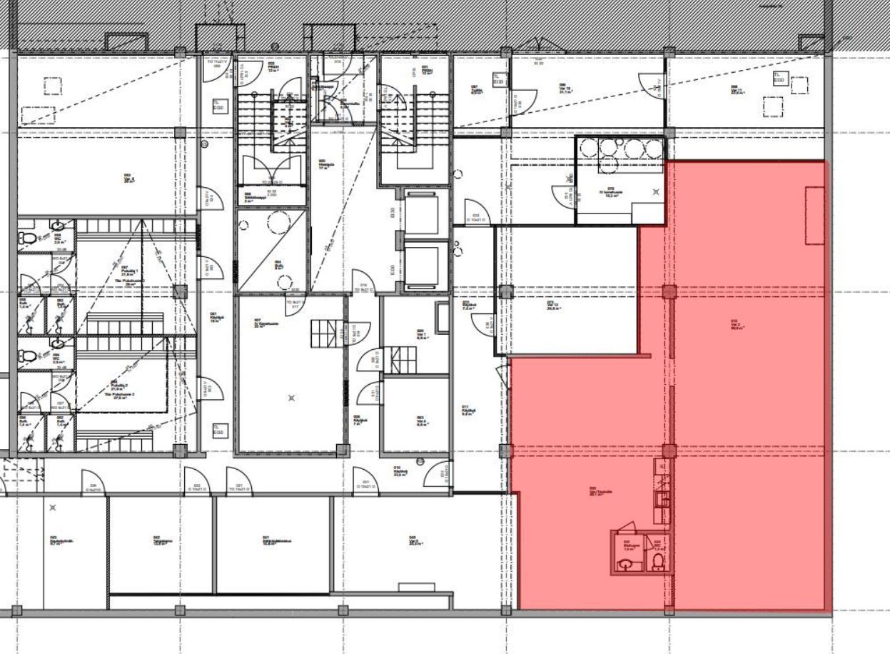
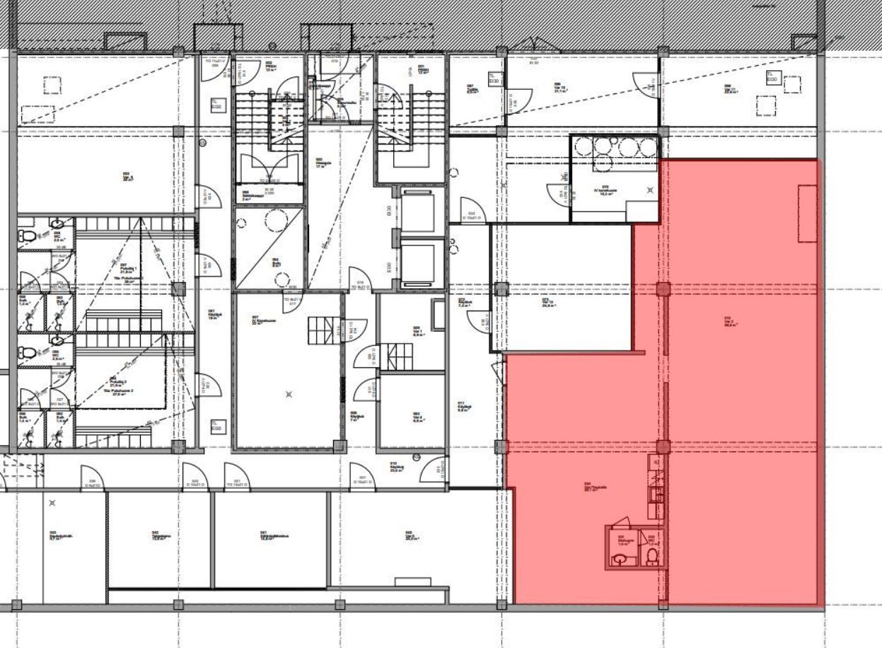
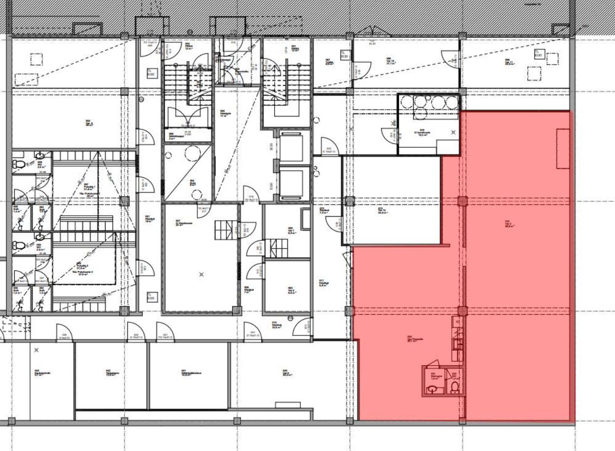
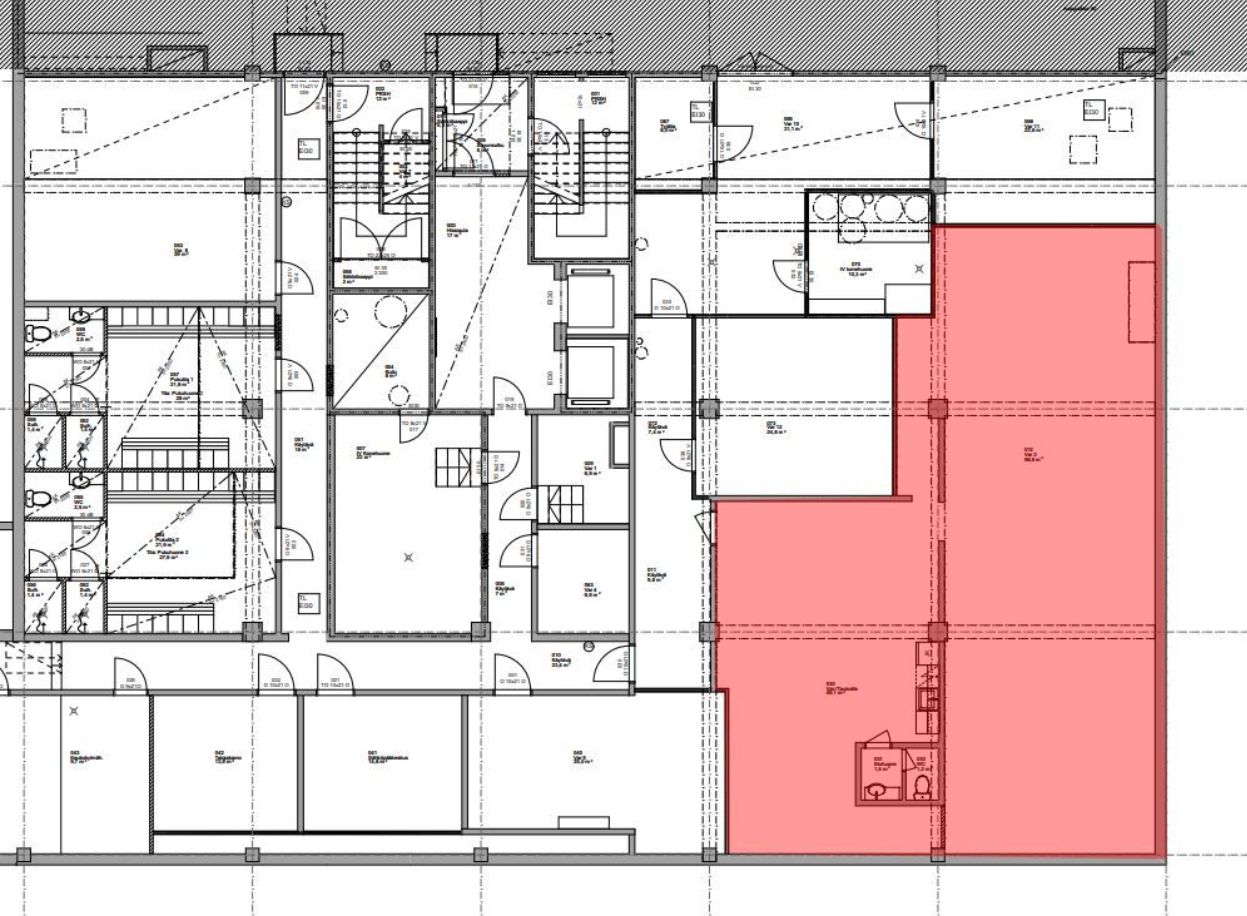
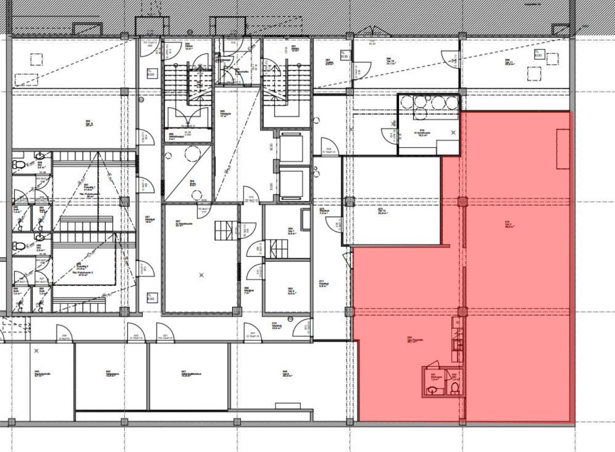
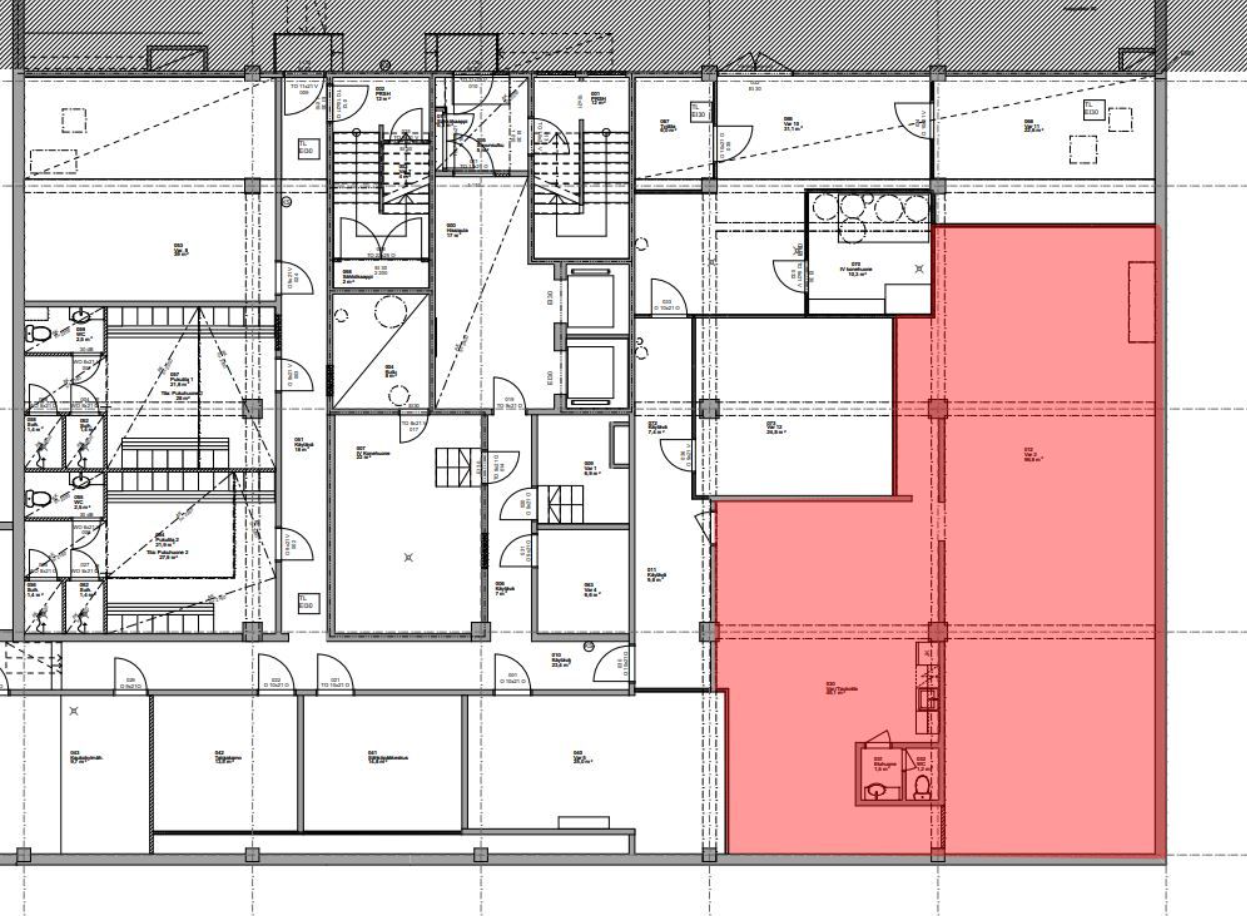
Helsingin Lönnrotinkatu 11 - Varasto-/erikoistila 148 m²
Osoite
Lönnrotinkatu 11, 00120 Helsinki
Tilatyyppi
Varastotilaa
148 m2
Pohjapiirros
Kiinteistö
Monikäyttöinen varasto-/erikoistila Helsingin keskustassa – 148 m²
Vuokrattavana kellarikerroksen erikoistila keskeisellä sijainnilla Helsingin ydinkeskustassa, Lönnrotinkadulla. Tila soveltuu erinomaisesti varastoksi, studioksi tai muuhun joustavaan käyttöön, ja tarjoaa toimivat puitteet monenlaiseen tarpeeseen.
Tilan ominaisuudet:
Pinta-ala: 148 m²
Kerros: Kellarikerros
Omassa käytössä: WC-tilat ja pieni keittiö
Mahdollisuus muuntaa tila esimerkiksi studiotilaksi
Tämä tila tarjoaa käytännöllisyyttä ja joustavuutta erinomaisella sijainnilla – täydellinen ratkaisu yritykselle, joka etsii keskustasta helposti saavutettavaa ja monikäyttöistä toimitilaa.
Lönnrotinkatu 11 - Modernia toimitilaa Helsingin keskustasta
Lönnrotinkatu 11, tuttavallisemmin "Lönkka 11", tarjoaa nykyaikaisia ja muunneltavia toimitiloja Helsingin Kampissa, aivan ydinkeskustan palveluiden ja liikenneyhteyksien äärellä. Vuonna 1972 valmistunut ja vuonna 2016 täysin saneerattu kiinteistö yhdistää klassisen arkkitehtuurin ja modernin toimistotekniikan.
Sijainti
Lönnrotinkatu 11 sijaitsee Kampin sydämessä, erinomaisella paikalla:
Kampin metroasema ja bussiterminaali: n. 600 m
Helsingin päärautatieasema: n. 890 m
Raitiovaunupysäkki: 260 m
Bussipysäkki: 150 m
Helsinki-Vantaan lentoasema: n. 22 km
Kivenheiton päässä ovat myös lukuisat ravintolat, kahvilat, hotellit ja muut keskustan palvelut. Ruttopuisto tarjoaa viihtyisän ympäristön tauoille ja etäpalavereille. Kohteen lähellä on myös runsaasti pysäköintilaitoksia.
Palvelut
Kiinteistössä on kattavat palvelut, jotka tukevat sujuvaa työarkea:
Lounasravintola ja kahvila katutasossa
Pukeutumis- ja suihkutilat
Pyörävarasto
Vuokrattavat autopaikat autohallissa ja sisäpihalla
Sähköautojen latauspisteet
Modernit, helposti muokattavat toimistotilat eri kerroksissa
Varastotilaa kellarikerroksessa
Vastuullisuus
Lönnrotinkatu 11 on ympäristöystävällinen valinta. Kiinteistölle on myönnetty LEED Platinum -sertifikaatti, joka kertoo korkeasta energiatehokkuudesta ja vastuullisista rakennusratkaisuista. Saneerauksessa on hyödynnetty vihreää sähköä, vettä säästäviä kalusteita ja säilytetty rakennuksen kantavat rakenteet.
Ota yhteyttä
Kiinnostuitko? Ota yhteyttä ja tule tutustumaan! Toimitilavälityspalvelumme on tilanhakijalle maksuton.
Vuokrattavana kellarikerroksen erikoistila keskeisellä sijainnilla Helsingin ydinkeskustassa, Lönnrotinkadulla. Tila soveltuu erinomaisesti varastoksi, studioksi tai muuhun joustavaan käyttöön, ja tarjoaa toimivat puitteet monenlaiseen tarpeeseen.
Tilan ominaisuudet:
Pinta-ala: 148 m²
Kerros: Kellarikerros
Omassa käytössä: WC-tilat ja pieni keittiö
Mahdollisuus muuntaa tila esimerkiksi studiotilaksi
Tämä tila tarjoaa käytännöllisyyttä ja joustavuutta erinomaisella sijainnilla – täydellinen ratkaisu yritykselle, joka etsii keskustasta helposti saavutettavaa ja monikäyttöistä toimitilaa.
Lönnrotinkatu 11 - Modernia toimitilaa Helsingin keskustasta
Lönnrotinkatu 11, tuttavallisemmin "Lönkka 11", tarjoaa nykyaikaisia ja muunneltavia toimitiloja Helsingin Kampissa, aivan ydinkeskustan palveluiden ja liikenneyhteyksien äärellä. Vuonna 1972 valmistunut ja vuonna 2016 täysin saneerattu kiinteistö yhdistää klassisen arkkitehtuurin ja modernin toimistotekniikan.
Sijainti
Lönnrotinkatu 11 sijaitsee Kampin sydämessä, erinomaisella paikalla:
Kampin metroasema ja bussiterminaali: n. 600 m
Helsingin päärautatieasema: n. 890 m
Raitiovaunupysäkki: 260 m
Bussipysäkki: 150 m
Helsinki-Vantaan lentoasema: n. 22 km
Kivenheiton päässä ovat myös lukuisat ravintolat, kahvilat, hotellit ja muut keskustan palvelut. Ruttopuisto tarjoaa viihtyisän ympäristön tauoille ja etäpalavereille. Kohteen lähellä on myös runsaasti pysäköintilaitoksia.
Palvelut
Kiinteistössä on kattavat palvelut, jotka tukevat sujuvaa työarkea:
Lounasravintola ja kahvila katutasossa
Pukeutumis- ja suihkutilat
Pyörävarasto
Vuokrattavat autopaikat autohallissa ja sisäpihalla
Sähköautojen latauspisteet
Modernit, helposti muokattavat toimistotilat eri kerroksissa
Varastotilaa kellarikerroksessa
Vastuullisuus
Lönnrotinkatu 11 on ympäristöystävällinen valinta. Kiinteistölle on myönnetty LEED Platinum -sertifikaatti, joka kertoo korkeasta energiatehokkuudesta ja vastuullisista rakennusratkaisuista. Saneerauksessa on hyödynnetty vihreää sähköä, vettä säästäviä kalusteita ja säilytetty rakennuksen kantavat rakenteet.
Ota yhteyttä
Kiinnostuitko? Ota yhteyttä ja tule tutustumaan! Toimitilavälityspalvelumme on tilanhakijalle maksuton.
Vapautuu
Kysy
Kerros
K
Ota yhteyttä
Logistila Oy
Kylätie 11-13, 00320 HELSINKI
Karoliina Turppo
Näytä puhelinnumero
050 345 3258
Pyydä lisätietoa
