Vuokrataan toimistotilat - Helsinki
Mannerheimintie 113, Ruskeasuo, 00280 Helsinki #10836023
Aitio Business Park - Toimisto 75 - 1500 m²
Osoite
Mannerheimintie 113, 00280 Helsinki
Tilatyyppi
Toimistotilaa
75 - 1500 m2
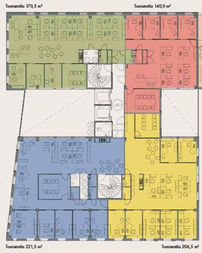
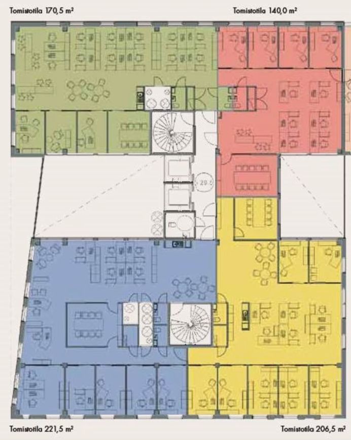
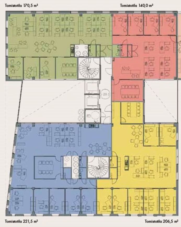
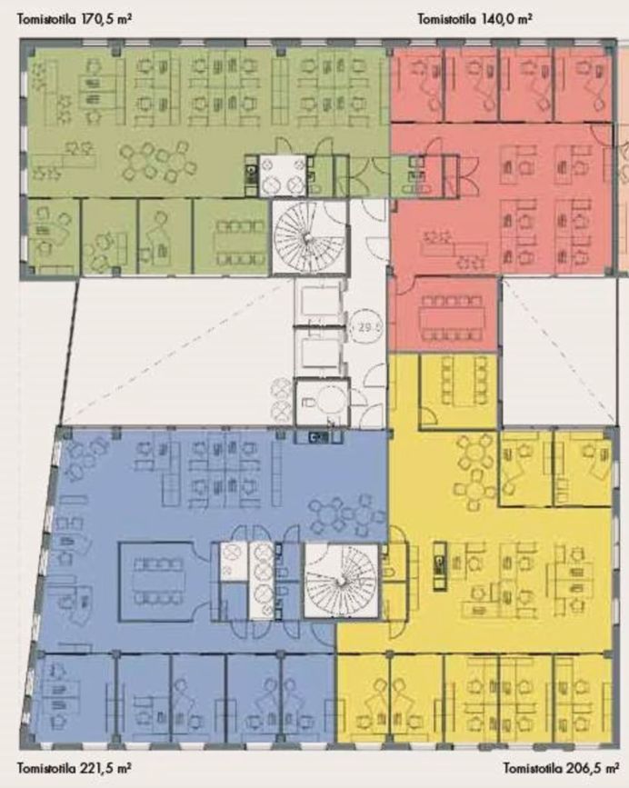
Pohjapiirros
Kiinteistö
Aitio Business Park - Modernia toimitilaa huippusijainnilla
Vuokrataan erikokoisia tilakokonaisuuksia erikokoisille yrityksille Mannerheimintien pohjoispäässä sijaitsevasta Aitio Business Parkista. Tämä tyylikäs ja vastuullisesti suunniteltu toimistokohde yhdistää erinomaiset kulkuyhteydet, kattavat palvelut ja viihtyisän työympäristön.
Aitio Business Park koostuu kahdesta toimistorakennuksesta, Vivaldista ja Verdistä, jotka valmistuivat vuosina 2013 ja 2016. Rakennuksissa on yhteensä 8 kerrosta. Toimistotilat sijoittuvat eri kerroksiin aina ensimmäisestä kuudenteen, ja ylimmässä kerroksessa sijaitsee muun muassa edustava kokous- ja juhlatila.
Toimitilat eri tarpeisiin
Kiinteistössä on tarjolla erikokoisia toimitiloja eri kokoisille yrityksille. Toimistotilojen koot vaihtelevat 75 m² - 1500 m², ja ne sijoittuvat kerroksiin 1–8. Tilaratkaisut voidaan räätälöidä tulevan vuokralaisen tarpeiden mukaan. Katso kuvista esimerkkipohjakuvat!
Sijainti
Aitio Business Park sijaitsee keskeisellä paikalla Helsingin Ruskeasuolla, aivan Hämeenlinnanväylän ja Hakamäentien risteyksessä. Keskustaan pääsee nopeasti, vain 15 minuutissa.
Kaupunkipyöräasema: 200 m
Bussipysäkki: 270 m
Raitiovaunupysäkki: 410 m
Ilmalan juna-asema: 1,4 km
Pasilan asema: 2,8 km
Helsinki-Vantaan lentoasema: 16 km
Palvelut
Kiinteistössä on kattavat palvelut, jotka tukevat yrityksen toimintaa ja henkilöstön hyvinvointia:
Ravintola- ja catering-palvelut
Toimisto- ja tietoliikennepalvelut
Hyvinvointipalvelut, kuten fysioterapia
Turvallisuuspalvelut
Hotellimainen aulatila ja vastaanotto
Vuokrattavat neuvottelu- ja juhlatilat
Lämmin 200-paikkainen parkkihalli, sähköautojen latauspisteet, autopesula
Pyöräparkki, suihkutilat ja pukuhuoneet
Vastuullisuus
Aitio Business Park on Suomen ensimmäinen toimistokohde, jolla on BREEAM Excellent -ympäristösertifikaatti. Rakennus on energiatehokas ja ympäristöystävällinen; vastuullinen valinta yrityksille, jotka haluavat toimia kestävästi.
Ota yhteyttä
Kiinnostuitko? Ota yhteyttä ja tule tutustumaan! Toimitilavälityspalvelumme on tilanhakijalle maksuton.
Vuokrataan erikokoisia tilakokonaisuuksia erikokoisille yrityksille Mannerheimintien pohjoispäässä sijaitsevasta Aitio Business Parkista. Tämä tyylikäs ja vastuullisesti suunniteltu toimistokohde yhdistää erinomaiset kulkuyhteydet, kattavat palvelut ja viihtyisän työympäristön.
Aitio Business Park koostuu kahdesta toimistorakennuksesta, Vivaldista ja Verdistä, jotka valmistuivat vuosina 2013 ja 2016. Rakennuksissa on yhteensä 8 kerrosta. Toimistotilat sijoittuvat eri kerroksiin aina ensimmäisestä kuudenteen, ja ylimmässä kerroksessa sijaitsee muun muassa edustava kokous- ja juhlatila.
Toimitilat eri tarpeisiin
Kiinteistössä on tarjolla erikokoisia toimitiloja eri kokoisille yrityksille. Toimistotilojen koot vaihtelevat 75 m² - 1500 m², ja ne sijoittuvat kerroksiin 1–8. Tilaratkaisut voidaan räätälöidä tulevan vuokralaisen tarpeiden mukaan. Katso kuvista esimerkkipohjakuvat!
Sijainti
Aitio Business Park sijaitsee keskeisellä paikalla Helsingin Ruskeasuolla, aivan Hämeenlinnanväylän ja Hakamäentien risteyksessä. Keskustaan pääsee nopeasti, vain 15 minuutissa.
Kaupunkipyöräasema: 200 m
Bussipysäkki: 270 m
Raitiovaunupysäkki: 410 m
Ilmalan juna-asema: 1,4 km
Pasilan asema: 2,8 km
Helsinki-Vantaan lentoasema: 16 km
Palvelut
Kiinteistössä on kattavat palvelut, jotka tukevat yrityksen toimintaa ja henkilöstön hyvinvointia:
Ravintola- ja catering-palvelut
Toimisto- ja tietoliikennepalvelut
Hyvinvointipalvelut, kuten fysioterapia
Turvallisuuspalvelut
Hotellimainen aulatila ja vastaanotto
Vuokrattavat neuvottelu- ja juhlatilat
Lämmin 200-paikkainen parkkihalli, sähköautojen latauspisteet, autopesula
Pyöräparkki, suihkutilat ja pukuhuoneet
Vastuullisuus
Aitio Business Park on Suomen ensimmäinen toimistokohde, jolla on BREEAM Excellent -ympäristösertifikaatti. Rakennus on energiatehokas ja ympäristöystävällinen; vastuullinen valinta yrityksille, jotka haluavat toimia kestävästi.
Ota yhteyttä
Kiinnostuitko? Ota yhteyttä ja tule tutustumaan! Toimitilavälityspalvelumme on tilanhakijalle maksuton.
Vapautuu
Kysy
Kerros
1-8
Ota yhteyttä
Logistila Oy
Kylätie 11-13, 00320 HELSINKI
Karoliina Turppo
Näytä puhelinnumero
050 345 3258
Pyydä lisätietoa
