Vuokrataan liiketilat - Oulu
Isokatu 32, 90100 Oulu #10835983
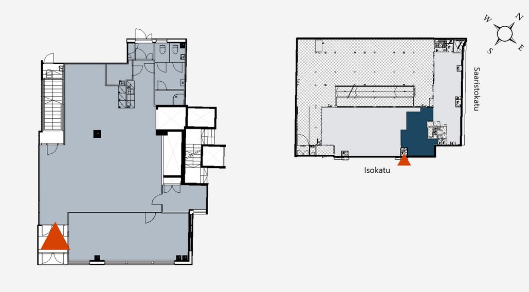
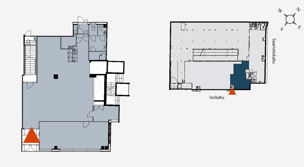
Vuokrataan 172m2 liikehuoneisto ensimmäisestä kerroksesta.
Isokatu 32 on keskustassa sijaitseva toimisto- ja liikerakennus, jossa on hyvin paikoitustilaa niin omalla väelle kuin vieraillekin.
Lisätietoja 020 7290 710. Lisää kohteita www.premises.fi
Energialuokka D2013.Kerros: 1
Osoite
Isokatu 32, 90100 Oulu
Tilatyyppi
Liiketilaa
172 m2
Ota yhteyttä
CRE PREMISES
Puh. Näytä puhelinnumero 020 7290 710
Vantaankoskentie 14
01670 VANTAA
Pyydä lisätietoa
