Vuokrataan varastotilat - Helsinki
Itälahdenkatu 23, Lauttasaari, 00210 Helsinki #10835974
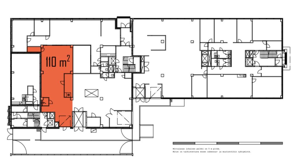
Varastotilaa Helsingin Lauttasaaressa.
Tämä 110 m² varastotila sijaitsee kiinteistön katutasossa. Ison avotilan lisäksi kaksi erillistä pientä varastohuonetta. Oma sisäänkäynti lastauslaiturilta (nosto-ovi 260 x 230 cm). Sisään voidaan kulkea myös A-rapun kautta Itälahdenkadun puolelta.
Itälahdenkatu 23 on 1970- luvulla valmistunut toimistorakennus, jossa on kokonaispinta-alaa 7000 m2. Kiinteistö sijaitsee hyvin kulkuyhteyksien varrella, noin kilometrin päässä Lauttasaaren metroasemasta. Rakennuksella on omia parkkipaikkoja sekä lastauslaituri. Alueella toimii useita lounasravintoloita. Kiinteistössä on viisi kerrosta, joihin kaikkiin kulkee henkilöhissit ja tavarahissi kellarista neljänteen kerrokseen asti.
Kysy lisää numerosta 044 723 4700 tai info@bref.fi. Palvelumme on tilanhakijoille ilmainen.
Bureau Real Estate Finland Oy
Lars Sonckin kaari 16, 02600 Espoo
Näytä puhelinnumero
0447234700
Bureau Real Estate Finland Oy
https://www.bref.fi