Vuokrataan toimistotilat - Espoo
Tekniikantie 4, Otaniemi, 02150 Espoo #10835943
Aallonharja sijaitsee Espoon Otaniemessä osoitteessa Tekniikantie 4. Saapuminen onnistuu helposti niin omalla autolla tai polkupyörällä kuin julkisilla kulkuvälineillä. Tuleva Raide-Jokeri ja sen lähin pysäkki sekä Aalto-yliopiston metroasema ovat molemmat vain joidenkin satojen metrien päässä.
Keskeisellä paikalla sijaitseva Aallonharja koostuu neljästä (4) kiinteistöstä. Talossa runsaasti palveluita kuten aulapalvelut, lounasravintola, vuokrattavat kokoushuoneet, pyöräparkki, pysäköinti pihalla tai hallissa. D-talon katolla lämpiää jopa kelosauna. Kuntosali vuokralaisille maksutta käytössä (B-talo). Erikoisuutena Aallonharjan oma Puutarhakerho antaa inspiraatiota, opastusta ja innostusta luonnonmukaiseen viljelyyn kotipihalla tai parvekkeella.
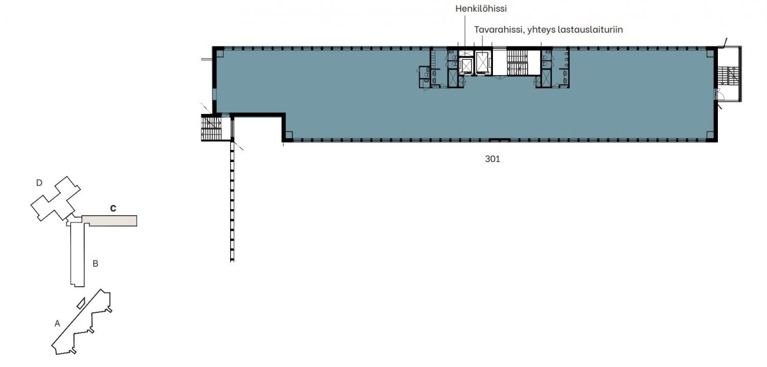
Tarjolla 581-neliöinen toimisto isolle organisaatiolle Aallonharjasta. Todella laajat palvelut talossa, julkiset kulkuyhteydet lähellä ja erinomaiset pysäköintimahdollisuudet.
Ota yhteys Croisetteen jos tämä tai mikä tahansa muu tila voisi soveltua teille. Kaikki vapaat tilat eivät ole nähtävillä joten yhteydenotosta kaikki lähtee. Palvelemme teitä tilanhaussa tehokkaasti ja hymyssä suin. Ja mikä parasta - palvelumme on tilanhakijana teille täysin maksutonta.
Hissi
Croisette Real Estate Partner
Erottajankatu 5 A 6, 00130 Helsinki
Näytä puhelinnumero
+358 400 585 857
Croisette Vuokraus
Näytä puhelinnumero
+358400585857
