Vuokrataan varastotilat - Kaarina
KOY Krossin Talliosake tila 14, Peltsaarenkatu 2 B, 20780 Kaarina #10835920
Suositulla Krossin Talliosakkeella monikäyttöinen ikkunallinen ja valoisa kulmavarasto, autotalli, harrastetila 14.
Osoite
Peltsaarenkatu 2 B, 20780 Kaarina
Tilatyyppi
Varastotilaa
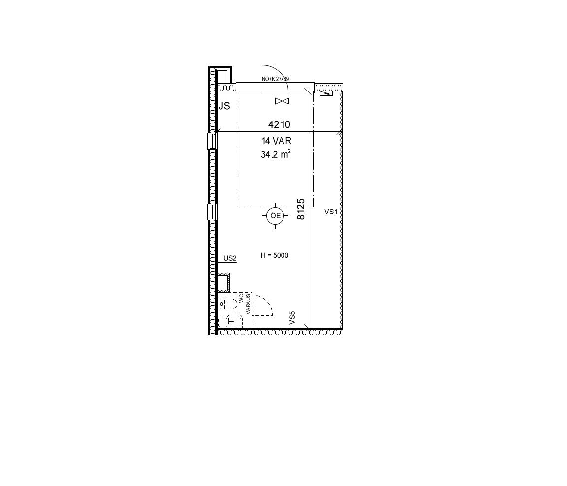
34 m2
Vuokra
450 € / kk
Kiinteistö
KOY Krossin Talliosake
Sijainti
Krossin Talliosake sijaitsee Kaarinassa, loistavien liikenneyhteyksien varrella Helsingin valtatie 1:n eteläisellä puolella. Skanssin laajat palvelut ovat vain noin kahden minuutin ajomatkan päässä ja Turun keskustaan ajomatkaa kertyy noin 10 minuuttia. Lisäksi aivan lähiympäristöstä löytyy paljon muita palveluita.
Muuta
Moottoroitu nosto-ovi erillisellä käyntiovella.
Autolla sisään ajettava tila. Tilamitat: 8,10 (Pituus) 4,20 (Leveys) 5,00 (Korkeus). Ovimitat: 2,70 (Leveys) 3,90 (Korkeus).
Käyttötarkoitusesimerkkejä: - toimitila - varastotila - yrityksen työtarvikevarasto / kalustovarasto - kimppatalli - harrastetila - bändikämppä - autotalli - moottoripyörätalli - mönkijätalli. Tila ei sovellu autokorjaamoksi eikä autopesulaksi.
Tila on sähkölämmitteinen. Vuokralainen tekee tilaan oman sähkösopimuksen. Vesi- ja sähkömaksu kulutuksen mukaan. Vakuus kahden kuukauden vuokraa vastaava määrä. Haetaan pitkäaikaista vuokralaista. Luottotiedot tarkistetaan.
Talliosake tuottaa joustavasti muunneltavia hallitiloja ympäri Suomen, joita yritykset ja yksityishenkilöt käyttävät tukikohtinaan erilaisille toiminnoille: yritys- ja liiketoimintaan, varastointiin sekä harrastuksiin.
Autolla sisään ajettava tila. Tilamitat: 8,10 (Pituus) 4,20 (Leveys) 5,00 (Korkeus). Ovimitat: 2,70 (Leveys) 3,90 (Korkeus).
Käyttötarkoitusesimerkkejä: - toimitila - varastotila - yrityksen työtarvikevarasto / kalustovarasto - kimppatalli - harrastetila - bändikämppä - autotalli - moottoripyörätalli - mönkijätalli. Tila ei sovellu autokorjaamoksi eikä autopesulaksi.
Tila on sähkölämmitteinen. Vuokralainen tekee tilaan oman sähkösopimuksen. Vesi- ja sähkömaksu kulutuksen mukaan. Vakuus kahden kuukauden vuokraa vastaava määrä. Haetaan pitkäaikaista vuokralaista. Luottotiedot tarkistetaan.
Talliosake tuottaa joustavasti muunneltavia hallitiloja ympäri Suomen, joita yritykset ja yksityishenkilöt käyttävät tukikohtinaan erilaisille toiminnoille: yritys- ja liiketoimintaan, varastointiin sekä harrastuksiin.
Vapautuu
Heti vapaa
Katutasossa
Ota yhteyttä
Talliosake Oy
Jani Sanevuori
Aluemyyntipäällikkö,
Etelä-Suomi, Vuokrauspalvelu, LVV
Näytä puhelinnumero
050 361 4814
Pyydä lisätietoa
