Vuokrataan toimistotilat - Espoo
Vaisalantie 4, Otaniemi, 02130 Espoo #10835901
Laadukasta toimistotilaa Espoon Otaniemessä
Osoite
Vaisalantie 4, 02130 Espoo
Tilatyyppi
Toimistotilaa
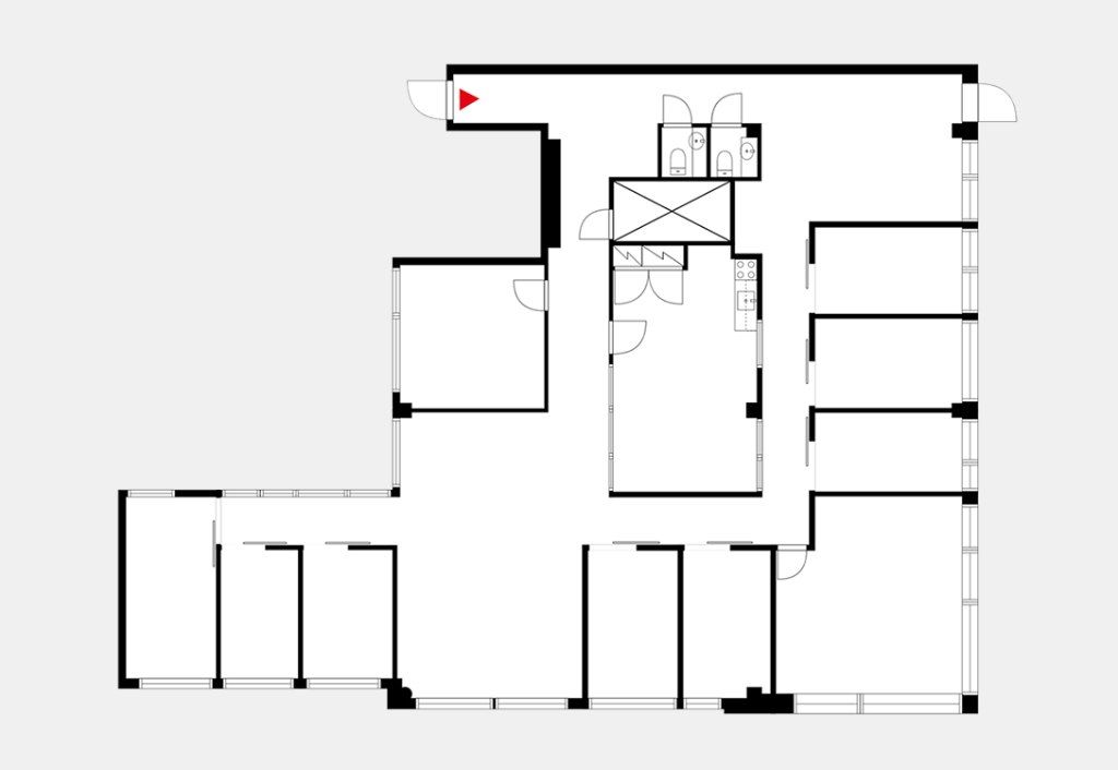
283 m2
Pysäköinti
Kyllä
Muuta
Laadukasta ja uudenveroista toimistotilaa Innopoli 3:ssa, B-rakennuksessa, kehittyvän Espoon Otaniemen alueella. Vuokrattava tila on 3. kerroksen avara 283m2 toimistotila, joka on räätälöitävissä juuri teille sopivaksi.
Technopoliksen toimintaympäristö takaa vuokralaisilleen erinomaiset ja modernit palvelut tilanteeseen kuin tilanteeseen. Kiinteistö on valmistunut 2009 ja on kaikki modernin Business Parkin palvelut: aula-ja kokouspalvelut, ravintola, hyvinvointipalvelut ja edustustilat.
Innopoli 3:n sijainti on erinomainen Kehä 1 välittömässä läheisyydessä ja Otaniemen vetovoimaisessa ympäristössä.
Tervetuloa tutustumaan, varaathan välittäjältä oman esittelyaikasi! Kysyt myös muita sopivia vaihtoehtoja - palvelumme on tilanhakijalle veloitukseton.
Technopoliksen toimintaympäristö takaa vuokralaisilleen erinomaiset ja modernit palvelut tilanteeseen kuin tilanteeseen. Kiinteistö on valmistunut 2009 ja on kaikki modernin Business Parkin palvelut: aula-ja kokouspalvelut, ravintola, hyvinvointipalvelut ja edustustilat.
Innopoli 3:n sijainti on erinomainen Kehä 1 välittömässä läheisyydessä ja Otaniemen vetovoimaisessa ympäristössä.
Tervetuloa tutustumaan, varaathan välittäjältä oman esittelyaikasi! Kysyt myös muita sopivia vaihtoehtoja - palvelumme on tilanhakijalle veloitukseton.
Vapautuu
Kysy
Rakennusvuosi
2009
Kerros
3
Ota yhteyttä
Tuloskiinteistöt Oy
Rikhardinkatu 2 B 5, 00130 Helsinki
Näytä puhelinnumero
(09) 6841 620
Nina Meyke
Commercial Real Estate Advisor
Näytä puhelinnumero
+358 50 466 1519
Otto Ahtola
Commercial Real Estate Advisor
Näytä puhelinnumero
+358 40 042 2830
Pyydä lisätietoa
